Residencial a Armenguer, La Vall d'en Bas
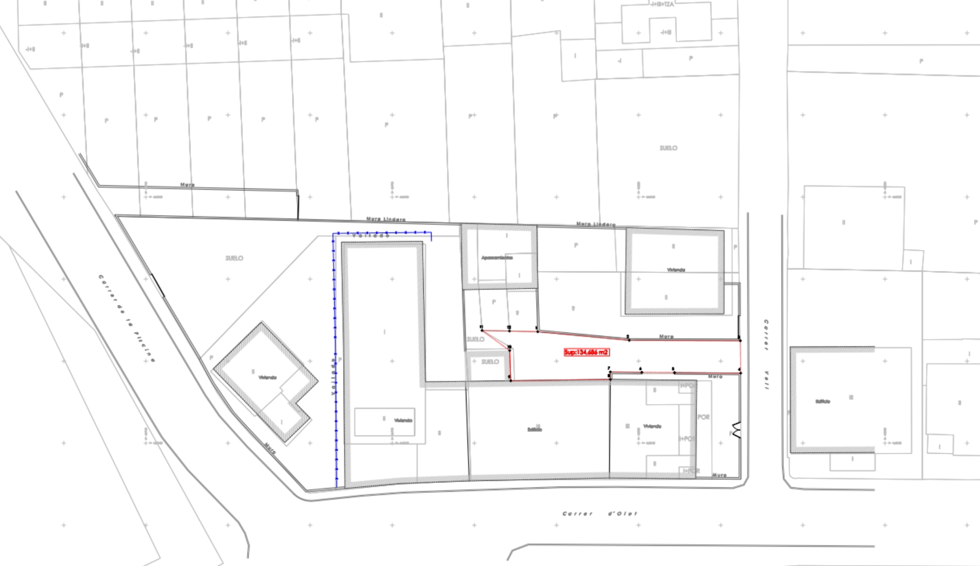
¡Oportunidad única en Vall d'en Bas, Girona! Este terreno de 1.462 m² se presenta como una excelente opción para quienes buscan tranquilidad y conexión con la naturaleza. Situado en la calle Armenguer, este suelo no urbanizable ofrece una forma rectangular ideal para desarrollar un proyecto personal o simplemente disfrutar de un espacio al aire libre. El acceso es sencillo, ya que se encuentra entre viviendas y cuenta con conexiones a otros terrenos en la parte trasera. La zona es tranquila y está rodeada de parcelas similares, lo que garantiza un ambiente apacible. Además, se beneficia de fácil acceso a la carretera y nudos de comunicación, facilitando el desplazamiento hacia servicios y urbanizaciones cercanas. La infraestructura está consolidada con un nivel medio alto, asegurando que el terreno cuenta con pavimentación, alcantarillado, suministro de agua, luz y gas por red general. También hay postes de servicio telefónico y alumbrado público disponibles, lo que añade comodidad a la vida diaria. No dejes pasar esta oportunidad de adquirir un terreno en un entorno natural privilegiado. ¡Contáctanos para más información! En cumplimiento de la ley 3/2917 del 13 de febrero de 2018 del CODIGO CIVIL DE CATALUNYA, por el que se aprueba el Reglamento de Información al Consumidor en la compraventa y arrendamiento de viviendas en CATALUÑA, se informa al cliente que los gastos notariales, registrales e impuestos que le sean de aplicación ( ITP ó IVA + AJD ) y otros gastos inherentes a la compraventa no están incluidos en el precio. [IW]
- 1462 m²
