Contrata luz y gas online, sin permanencia
- 155 m²
- 155 m² terreny
Residencial en venda a C/ de Jávea, Los Ángeles
Alicante / Alacant
Se ofrece en venta solar urbano de 155 m² situado en el Barrio Los Ángeles de Alicante, frente al centro de salud y en una zona bien comunicada con el centro de la ciudad y principales vías de acceso. La parcela se encuentra en una ubicación consolidada con servicios, comercios, transporte público y demanda residencial estable, lo que la convierte en una oportunidad interesante tanto para promotores como para inversores.
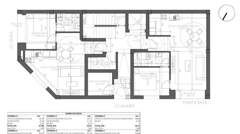
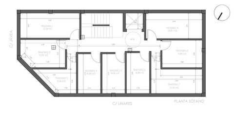
El solar se encuentra clasificado urbanísticamente con clave RP (Renovación de Periferias), grado 3, nivel a, permitiendo una edificabilidad aproximada de sótano + planta baja + 2 alturas + ático retranqueado. La normativa establece altura máxima de 9,10 m (ARM) y retranqueo mínimo de 3 m en la planta ático respecto al plano de fachada.
Según un estudio previo de viabilidad, la parcela permitiría el desarrollo de un edificio residencial de hasta 7 viviendas, con una distribución orientativa que incluye viviendas de 1 y 2 dormitorios, algunas de ellas con 2 baños, incluyendo planta baja y ático. El planteamiento contempla escalera comunitaria protegida, adaptada a normativa actual.
En cuanto a los elementos de fachada, no se permiten vuelos cerrados en calles de menos de 10 metros de ancho, mientras que los vuelos abiertos están permitidos hasta 0,9 m o el 5% del ancho de la calle.
Se trata de un solar de esquina con gran visibilidad y posibilidades de desarrollo, ideal para promoción residencial en una zona con demanda consolidada.
Característiques
Tipus d'immoble
Residencial
Tipus d'interès
Quota mensual estimada
755 €
Servei ofert per
Fotocasa no actua com a intermediari financer. La informació proporcionada té caràcter orientatiu, basant-se en informació pública al mercat. Serà l'entitat de crèdit qui contacti amb el potencial prestatari per negociar, facilitar i pactar les condicions financeres aplicables.
Desglossament de la hipoteca
La teva quota mensual
755 € *
Durant 30 anys (360 quotes)
Preu de l'immoble:
210.000 €
Impostos i despeses de la compra:
22.996 €
Cost total de l'immoble:
232.996 €
Estalvi aportat:
42.000 €
Import de la hipoteca:
190.996 €
Interessos totals:
80.683 €
Cost total amb hipoteca
313.679 €
Capital + interessos + impostos i despeses
Fotocasa no actua com a intermediari financer. La informació proporcionada té caràcter orientatiu, basant-se en informació pública al mercat. Serà l'entitat de crèdit qui contacti amb el potencial prestatari per negociar, facilitar i pactar les condicions financeres aplicables.
Elige la Fibra que mejor se adapte a ti.