Pis de 108 m² a Llevant
Llevant, Igualada
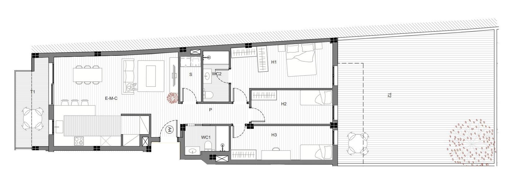
- 3 habs·
- 2 baños·
- 108 m²·
- 1ª Planta·
- Ascensor·
- Terrassa·
- Balcó·
- Calefacció
- Més de 3 mesos
Presentamos NUEVA PROMOCIÓN en la zona levante de Igualada! Ubicación Inmejorable: Disfruta de la comodidad de tener todo lo que necesitas a tu alcance. Desde servicios de salud como el CAP Urbà, hasta excelentes conexiones de transporte público en la estación de bus y tren FGC; esta ubicación ofrece una vida muy práctica. Diseño y Calidad: La promoción consta de 12 exclusivos inmuebles, con opción a plazas de aparcamiento y trasteros. Los acabados de primera calidad definen cada espacio, desde suelos de parqué, porcelánico en zonas de cocina y baños, puertas lacadas; garantizando un ambiente elegante y duradero. Eficiencia Energética: Comprometidos con el futuro y el medio ambiente, cada hogar cuenta con calefacción y agua sanitaria por aerotermia, una solución sostenible que reduce el impacto ambiental y disminuye los costos de energía. Inicio de obra durante el año 2024. En esta publicación, les mostramos un inmueble 108m2 construidos, que consta de 3 dormitorios (1 tipo suite), 2 baños completos, cocina abierta, salón comedor, amplio balcón de 9,54m2 y gran terraza de 69,45m2. Descubre el equilibrio perfecto entre elegancia y funcionalidad en esta nueva promoción. ¡Contacte con FINQUES BADIA y le daremos más detalles!
