Oficina a Avenida Rafael Cabrera, 16, Triana
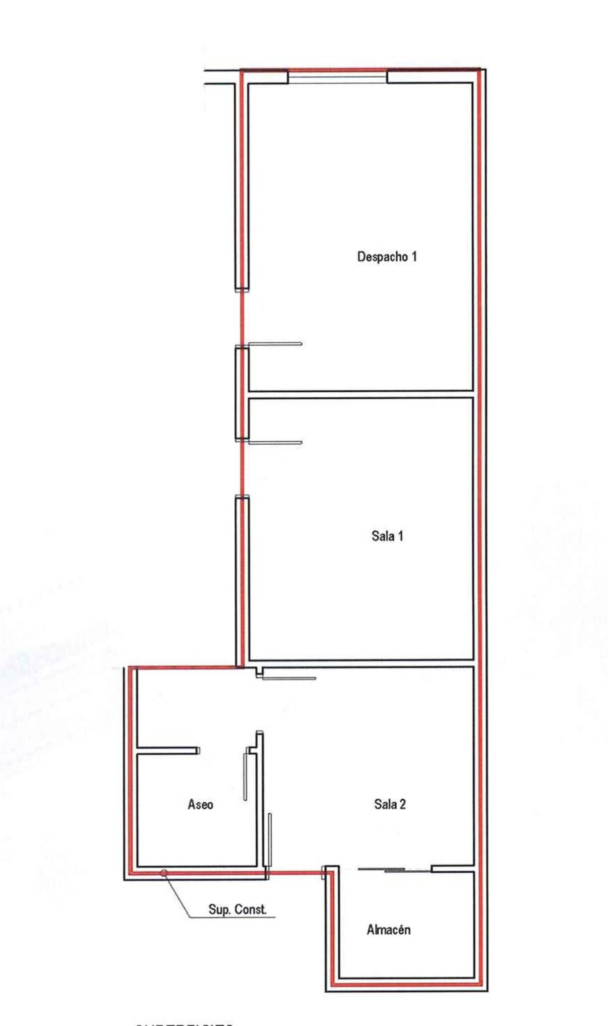
Ubicada en la prestigiosa zona de Triana, Las Palmas de Gran Canaria, esta oficina ofrece una excelente oportunidad para quienes buscan un espacio versátil y luminoso. Con una superficie construida de 55 m2 y útil de 50 m2, el inmueble se encuentra situado en una calle principal que garantiza alta visibilidad. Aunque necesita reformas, su distribución permite diversas configuraciones adecuándose a las necesidades del futuro propietario. El entorno está perfectamente equipado con transporte público cercano y fácil acceso al parking; además cuenta con centros comerciales y colegios cercanos que enriquecen la oferta local. Disfruta también de agradables vistas desde sus ventanales exteriores lo que aporta luz natural durante todo el día. Su precio es negociable brindando flexibilidad a los interesados.
- 55 m²·
- 2ª planta·
- Ascensor
