Local comercial esquinero en calle Roteros, con gran visibilidad y alto paso peatonal en barrio El Carme.
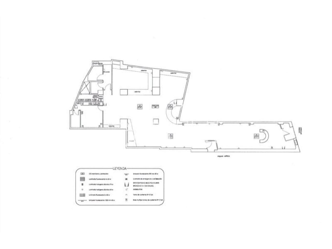
El local, con última actividad de tienda de bisutería, cuenta con amplia fachada, dos puertas de acceso, dos splits de aire acondicionado y tres baños, uno de ellos con plato de ducha y uno adaptado para minusválidos.
El inmueble está distribuido en zona de tienda y trastienda.
Gran oportunidad de local que garantiza gran visibilidad y paso peatonal en una de las calles más comerciales del centro histórico de Valencia.
* Gastos de comunidad + IBI 150€/mes
*La información contenida en este anuncio cumple los requisitos establecidos en la Ley 34/1988, de 11 de noviembre, General de Publicidad. Informamos al cliente que el anuncio puede contener errores puntuales y se publica a modo informativo y no contractual.
Descobreix altres propietats prop de El Carme, Valencia Capital