Contrata luz y gas online, sin permanencia
Pis en venda a Gasómetro, Roger de Llúria, Gibert y Pare Font, Segle XX
Terrassa
Pertany a la promoció Gasómetro (terrassa)
¡En construcción!
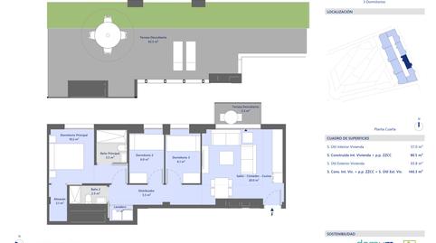
Gasòmetre es un proyecto de dos edificios, ubicado en Terrassa, en pleno barrio Segle XX. Cada edificio cuenta con 58 y 39 viviendas respectivamente. Entre ambos, hay viviendas disponibles de 1, 2, 3 y 4 habitaciones.
El edificio de 39 viviendas, dispondrá además de una zona comunitaria con piscina.
Las viviendas disponen de unas excelentes distribuciones. Y cuentan ambos edificios además con plantas sótano con garajes y trasteros.
La excelente orientación de ambos edificios, con una nueva plaza con parque y zonas de descanso, permite el aprovechamiento del asoleamiento en todas las viviendas, así como la integración con el entorno de la plaza de nueva creación.
A su vez, dispone de unos interiores modernos con materiales nobles y de primera calidad, con buenas distribuciones que permiten una gran calidez en sus estancias.
Gasòmetre es un referente de calidad medio ambiental y urbano. Su buena ubicación en Terrassa le sitúa en una zona residencial bien comunicada, con fácil acceso a todo tipo de servicios y a escasos minutos del centro.
Solicítanos más información sobre cada uno de los edificios y sus características.
Es tu vida, elige dónde vivirla
Característiques de l'habitatge
Característiques bàsiques
Certificat energètic
Pertany a
Gasómetro (Terrassa)
Promoció Des de 325.000 €
Gasómetro, Roger de Llúria, Gibert y Pare Font, Terrassa
- Habitacions:3
- Banys:2
- Superfície:146
Tipus d'interès
Quota mensual estimada
1.164 €
Servei ofert per
Fotocasa no actua com a intermediari financer. La informació proporcionada té caràcter orientatiu, basant-se en informació pública al mercat. Serà l'entitat de crèdit qui contacti amb el potencial prestatari per negociar, facilitar i pactar les condicions financeres aplicables.
Desglossament de la hipoteca
La teva quota mensual
1.164 € *
Durant 30 anys (360 quotes)
Preu de l'immoble:
325.000 €
Impostos i despeses de la compra:
34.699 €
Cost total de l'immoble:
359.699 €
Estalvi aportat:
65.000 €
Import de la hipoteca:
294.699 €
Interessos totals:
124.491 €
Cost total amb hipoteca
484.190 €
Capital + interessos + impostos i despeses
Fotocasa no actua com a intermediari financer. La informació proporcionada té caràcter orientatiu, basant-se en informació pública al mercat. Serà l'entitat de crèdit qui contacti amb el potencial prestatari per negociar, facilitar i pactar les condicions financeres aplicables.
Elige la Fibra que mejor se adapte a ti.