Contrata luz y gas online, sin permanencia
Àtic en venda a Carrer Braç del Moli, 3, Quart de Poblet
Quart de Poblet
Pertany a la promoció Molí Mistral
¡Edificio terminado con entrega en las próximas semanas!
Residencial Mistral, complejo Residencial de viviendas y locales de Obra nueva con piscina en Quart de Poblet, junto al metro.
Residencial Mistral se sitúa en una zona totalmente nueva, el barrio del Molí de Animeta de reciente creación, construido con criterios medioambientales que impactan en el entorno. Vivirás a 12 minutos del centro de Valencia en METRO.
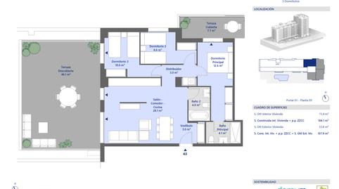
Molí Mistral está compuesto por 120 viviendas de 2, 3 y 4 dormitorios, con amplias terrazas que van desde de los 6,3 a los 15m2 de superficie y aticos con terrazas desde 30m2. Pisos desde 75 a 137 metros cuadrados. El complejo destaca por su diseño con criterios actuales de sostenibilidad y optimización de los espacios, con calificación energética AA, una excelente ubicación y grandes características. Viviendas para disfrutar de una calidad de vida inmejorable.
El complejo se divide en dos escaleras, con diversidad de orientaciones, además de una zona comunitaria, con piscina infantil y de adultos. Diseñado por el estudio ARQUEHA, esta promoción combina sostenibilidad y fantásticas calidades.
A solo 5 minutos del centro de Quart de Poblet está Residencial Molí Mistral, a 1min de la parada de metro y muy próximo a todo tipo de comercios, centros educativos y los servicios necesarios para disfrutar de la ciudad y sus beneficios.
Tu vida, tú eliges dónde vivirla.
Característiques de l'habitatge
Característiques bàsiques
Certificat energètic
Immobles d'aquesta promoció
1 Habitatge en aquesta promoció
Pertany a
Molí Mistral
Promoció Des de 381.000 €
Carrer Braç del Moli, 3, Quart de Poblet
- Habitacions:De 2 a 3
- Banys:2
- Superfície:De 117 m² a 158 m²
Tipus d'interès
Quota mensual estimada
1.566 €
Servei ofert per
Fotocasa no actua com a intermediari financer. La informació proporcionada té caràcter orientatiu, basant-se en informació pública al mercat. Serà l'entitat de crèdit qui contacti amb el potencial prestatari per negociar, facilitar i pactar les condicions financeres aplicables.
Desglossament de la hipoteca
La teva quota mensual
1.566 € *
Durant 30 anys (360 quotes)
Preu de l'immoble:
438.000 €
Impostos i despeses de la compra:
45.999 €
Cost total de l'immoble:
483.999 €
Estalvi aportat:
87.600 €
Import de la hipoteca:
396.399 €
Interessos totals:
167.453 €
Cost total amb hipoteca
651.452 €
Capital + interessos + impostos i despeses
Fotocasa no actua com a intermediari financer. La informació proporcionada té caràcter orientatiu, basant-se en informació pública al mercat. Serà l'entitat de crèdit qui contacti amb el potencial prestatari per negociar, facilitar i pactar les condicions financeres aplicables.
Elige la Fibra que mejor se adapte a ti.