OBRAS INICIADAS. Nueva promoción de viviendas de 2, 3 y 4 dormitorios situada entre la Calle Sant Gabriel y la prolongación de La Rambla del Carme de Esplugues de Llobregat. Próxima parada línea 3 de metro. A 10 minutos de Barcelona.
NO | BA Homes V es un conjunto residencial compuesto por 90 viviendas, 2 locales comerciales, 98 garajes para vehículos, 90 trasteros y 45 plazas de garaje para motocicletas.
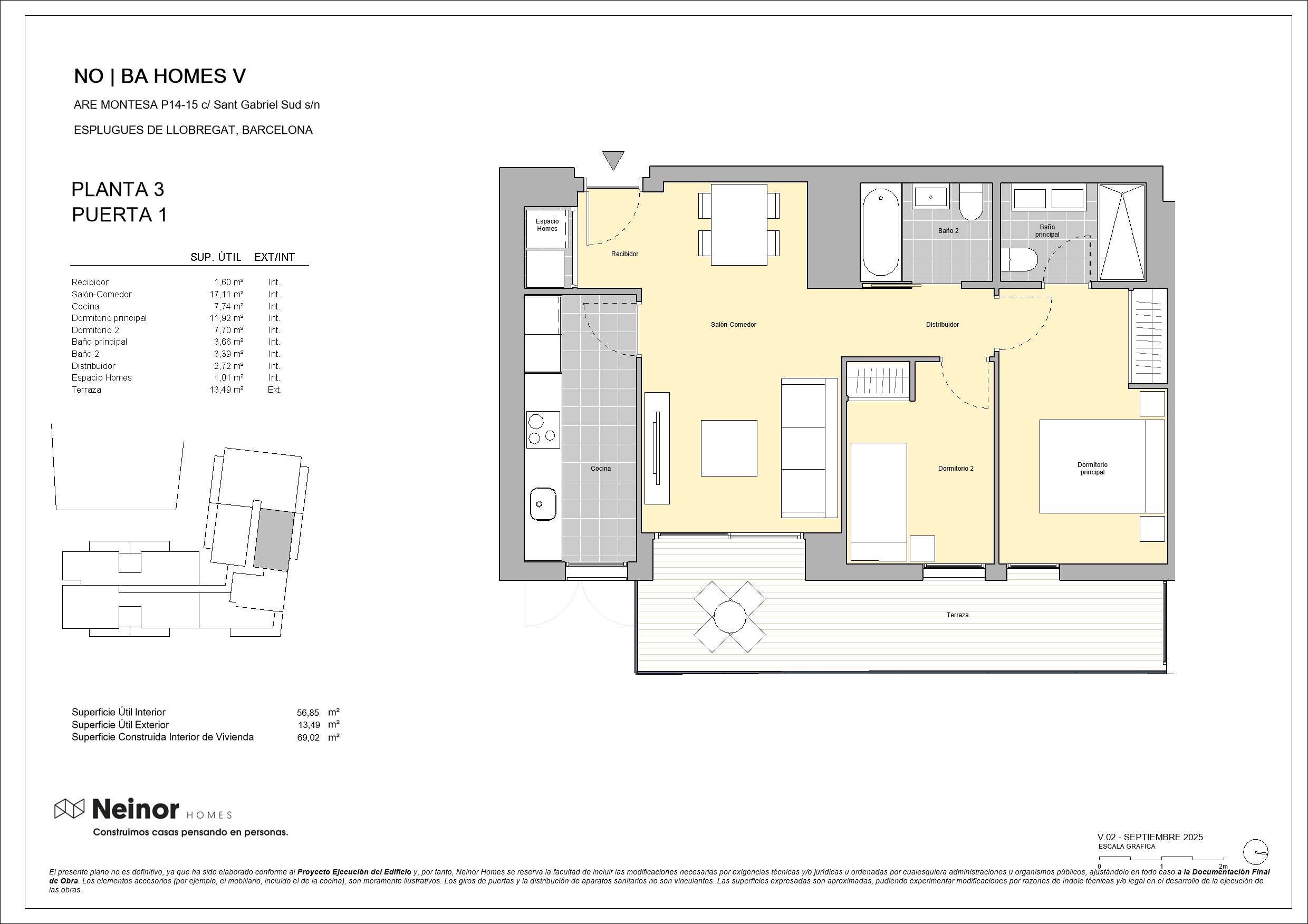
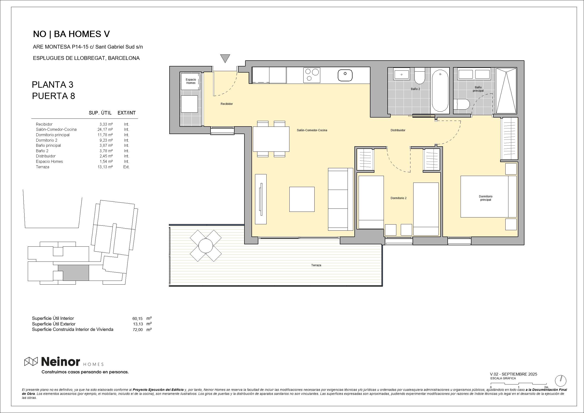
Las 90 viviendas cuentan con 2, 3 o 4 dormitorios, distribuidas en planta baja más 4 alturas y planta baja más 14 alturas, todas con acabados de alta calidad. Este conjunto residencial incluye una amplia zona Chill Out en la azotea de la planta 15, con magníficas vistas, un gimnasio exterior en la planta 5 para ejercitarse al aire libre y un taller de bicicletas en el garaje.
Ubicado en el sector Montesa, Esplugues de Llobregat este proyecto se caracteriza por sus fachadas modernas y cálidas, construidas con materiales sostenibles que favorecen el ahorro energético y proporcionan bienestar y confort para toda la familia. El precio de la vivienda no incluye el parking ni el trastero.
“A los precios anunciados debe añadirse el I.V.A. al tipo vigente en cada momento en que se produzca el devengo. El tipo actual es el 10%. Gastos de compraventa no incluidos”.