- Fa 42 dies
Planta baixa a Alameda - Mentidero - Teatro Falla
- 1 hab ·
- 1 baño ·
- 48 m² ·
- baixos ·
- Fa 42 dies
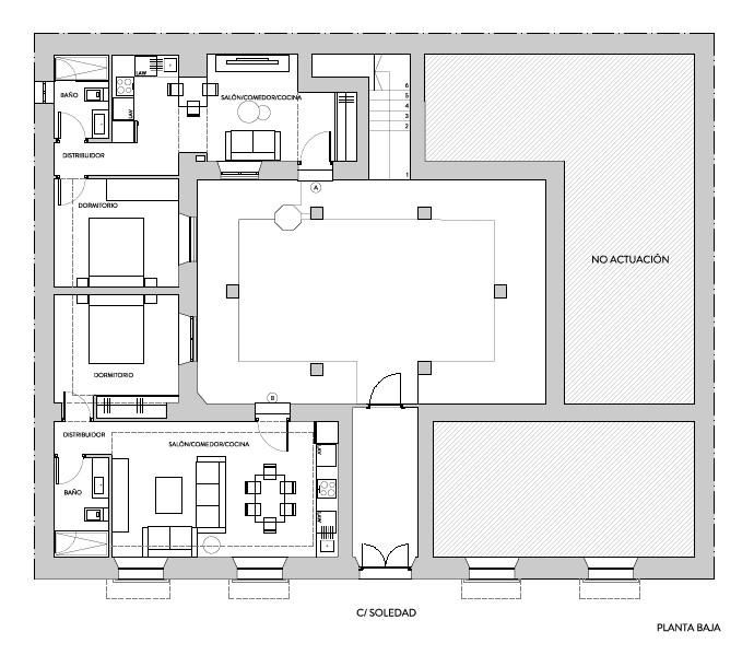
¿Quieres estrenar casa sin perder el encanto de una finca con solera en Cádiz? No busques más, este es tu inmueble. Aprovecha esta *COLLÁ!! Destacable: -Altas calidades en la renovación de este apartamento al que le queda bastante poco para finalizar su construcción. -Ven con tus maletas y se parte de la vecindad desde el primer minuto. -Estrenar tu casa, reconócelo, es pura fantasía. Posibilidades: -Se entrega con la cocina equipada amueblada -Magnífica vivienda nueva, con acabados de lujo, muy cerca de la emblemática casa de los ladrillos coloraos. -Esta vivienda se caracterizará por los acabados y los detalles de gran calidad Interesante: -El edificio está catalogado por Patrimonio Arquitectónico de Andalucía dentro de Cº Hº de Cádiz. B.O.E. 25/11/1978 y pertenece al Grado 2 de protección urbanística por su carácter preferente. - Inmueble BAJO A Calidades: -Paredes lisas, calidades actuales, todo un abanico del buen hacer en tu nueva vivienda. Rentabilidad: -Los alquileres de larga temporada en Cádiz están muy demandados, puede ser tu oportunidad de tener ese ingreso pasivo que necesitas. Localización: -Cerca, muy cerca de la plaza de Fragela, epicentro del carnaval gaditano allá por febrero. Curiosidades: -Originalmente, el nombre hace referencia a las dos primeras cofradías de Cádiz, la de Veracruz y la del Santo Entierro que tenían a la Virgen de dicho nombre como patrona. Desde que Cádiz fue sede del IX Congreso Internacional de la Lengua Española en 2023 Innysse incluye en sus anuncios palabras del habla gaditana como esta: *COLLÁ: Oportunidad, generalmente imprevista Si esta propiedad fuera una canción sería \"Soledad\" de Morad https://youtu.be/3-9zECw26uk?si=qKxayagKpR-oJu0x Honorarios, gastos e impuestos relativos a la compra y/o financiación del inmueble, no se encuentran incluidos en el precio de venta del mismo. Como consumidor tiene derecho a que se le informe y entregue la documentación informativa que corresponda, según el caso, en base a lo dispuesto en el Decreto 218/05 de 11 de Octubre que regula el Reglamento de Información al Consumidor en la compra-venta y arrendamiento de vivienda en Andalucía. Esta información tiene un periodo de validez de 15 días. Mobiliario no incluido en el precio. Características y precios válidos salvo error tipográfico. El plano de este anuncio se genera automáticamente mediante medios digitales asociados a la aplicación de realización de tour virtual y pueden no ajustarse exactamente a la realidad. El plano tiene una finalidad meramente orientativa. La fotografía de portada de este anuncio ha podido verse sometida a la utilización de filtros fotográficos con el objetivo de crear una imagen más artística. Innysse, la atípica inmobiliaria de toda la vida. Calle Barrié 25 de Cádiz. Calle San Francisco 35 de Cádiz. 856100187 633965623 info@innysse.es www.innysse.es
