Conecta tu hogar
Elige la Fibra que mejor se adapte a ti.
Gáldar
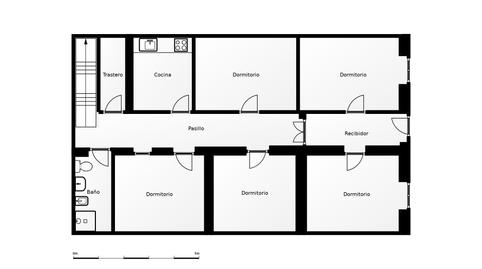
5 habitaciones y azotea privada. Haz el TOUR VIRTUAL ahora y visualiza tu futuro proyecto.
⚠️ ¡ATENCIÓN! Antes de leer, dale al Play al VÍDEO. Hemos preparado una recreación para que veas el increíble potencial que esconden estos muros. No te lo imagines: míra cómo podría quedar tu futuro hogar.
¿Ya lo has visto? Entonces hablemos de tu nueva vida.
Vivir en un piso tiene fecha de caducidad. Tengas 30 o 60 años, llega un momento en que necesitas tierra, cielo abierto y silencio. Esta casa en Barrial (Gáldar) es el lienzo de 130 m2 donde vas a pintar la mejor etapa de tu vida.
Transparencia total (y digital): Sabemos que comprar para reformar genera dudas. Por eso, además del vídeo con la propuesta de diseño, tienes disponible el TOUR VIRTUAL 360º. Recorre cada rincón desde tu móvil, mide espacios y comprueba la distribución real. Sin sorpresas, con total honestidad.
¿Por qué esta casa es tu compra maestra?
Espacio real para todos: Con 5 habitaciones, se acabaron las peleas por el espacio. ¿Teletrabajo? Tienes despacho. ¿Familia numerosa? Caben todos.
La joya de la corona: Una azotea transitable con vistas directas al Teide. Un espacio privado que vale más que cualquier metro cuadrado interior.
Tu ritmo, tu presupuesto:
¿Primera vivienda? Entra al mercado a buen precio y reforma por fases, revalorizando tu ahorro.
¿Buscas tu casa definitiva? Tienes la estructura y los metros para hacerla de lujo y a tu gusto, todo en una planta cómoda.
Ubicación estratégica en Barrial: Vives en una zona residencial tranquila, de las de "buenos días" al vecino, pero con logística resuelta:
🚗 Conectividad: Acceso rápido a la autovía y al casco de Gáldar.
🛒 Servicios: Supermercados, farmacias y colegios a un paseo.
⚽ Ocio: Ciudad Deportiva muy cerca.
Deja de pagar por vivir encajonado. Esta es una oportunidad de comprar suelo, vuelo y futuro. Una propiedad independiente, sin gastos de comunidad y con la libertad que siempre has buscado.
¿Te ha gustado lo que has visto en el vídeo y el tour? La realidad es aún mejor. Ven a subir a esa azotea y siente la brisa tú mismo.
📅 Agenda tu visita presencial ahora.
Tipo de inmueble
Disponibilidad
Agua caliente
Estado
Ascensor
Amueblado
Energía
Emisiones
Tipo de interés
Cuota mensual estimada
728 € *
* Provisional sujeto a estudio y oferta de CaixaBank
¿Ya estás buscando financiación?
Te ayudamos a encontrar la opción que mejor se adapta a ti.
Servicio ofrecido por
Fotocasa no actúa como intermediario financiero. La información proporcionada tiene carácter orientativo, basándose en información pública en el mercado. Será la entidad de crédito quién contacte con el potencial prestatario para negociar, facilitar y pactar las condiciones financieras aplicables.
Tu cuota mensual
728 € *
Durante 30 años (360 cuotas)
* Provisional sujeto a estudio y oferta de CaixaBank
Precio del inmueble:
212.000 €
Impuestos y gastos:
14.716 €
Coste total del inmueble:
226.716 €
Ahorro aportado:
42.400 €
Importe de la hipoteca:
184.316 €
Intereses totales:
77.862 €
Coste total con hipoteca
304.578 €
Capital + intereses + impuestos y gastos
¿Ya estás buscando financiación?
Te ayudamos a encontrar la opción que mejor se adapta a ti.
Servicio ofrecido por
Fotocasa no actúa como intermediario financiero. La información proporcionada tiene carácter orientativo, basándose en información pública en el mercado. Será la entidad de crédito quién contacte con el potencial prestatario para negociar, facilitar y pactar las condiciones financieras aplicables.
Elige la Fibra que mejor se adapte a ti.
Contrata luz y gas online, sin permanencia
Cuéntanos qué has visto para poder corregirlo.