- Hace 6 días
Residencial en Calle Gabriel Miró, 2, Barrio de Peral - San Félix
Barrio de Peral - San Félix, Cartagena
- 400 m²
- Hace 6 días
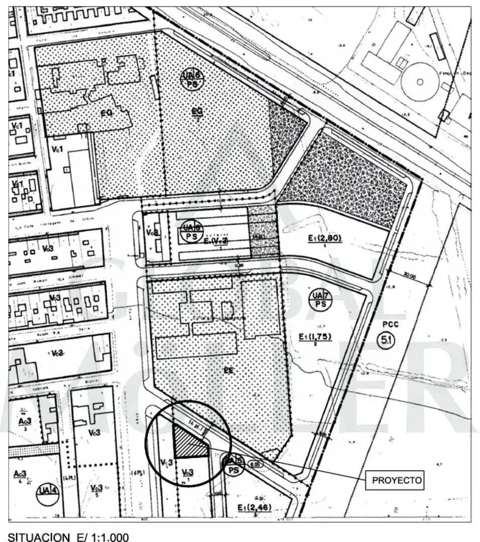
GLOBAL MÖLLER vende Suelo Urbano Directo en Cartagena, sito entre las Calles Gabriel Miró y Antonio Machado. En Esquina. CARACTERISTICAS DEL SOLAR De forma trapezoidal, se encuentra situado en el cruce de las Calles Gabriel Mistral y Antonio Machado de Cartagena, dentro de la trama urbana de la Unidad de Actuación N.º 5 de Barrio Peral Sur. Zona Mandarache, ubicación muy Céntrica. En la actualidad, el terreno se encuentra libre de Edificaciones. Dimensiones de la Parcela: • 400m² de Superficie • 37,63m longitud de fachada libre Situación Urbanística: Es de aplicación, el Plan General de Ordenación Urbana de Cartagena, Parcela 1.1, U. A. 5 Requisitos o Características que forman parte de este Plan a cumplir, para la Construcción de una Edificación: • Suelo Urbano, Residencial Colectivo, con usos permitidos • Calificación Vc3 (Grado 3º). • Parcela mínima: 400m². • Longitud fachada mínima, 16m. • Uso principal, Residencial. • Uso especifico, Garajes, en Planta Sótano. • Uso permitido, Local Comercial en Planta Baja. • Numero de plantas permitidas, plantas sobre rasante, 4. • Altura máxima cornisa, 15.20m. • Edificabilidad máxima, 1.516,55m² • Fondo máximo, 13m. Esta parcela permite el encaje de: • 9 viviendas, con superficies construidas, incluyendo parte proporcional de zonas comunes de, 130m²-135m² aprox. • 12 Plazas de Garaje y 9 Trasteros, ambos ubicados en Planta Sótano, • Local Comercial, sito en Planta Baja, de más de 300m². Para ampliar información acerca de esta parcela urbana y de una posible Edificación, contacte con GLOBAL MÖLLER Inmobiliaria. Ref. 202617
