Apartamento en Rokabella, Callao Salvaje - Playa Paraíso
Callao Salvaje - Playa Paraíso, Adeje
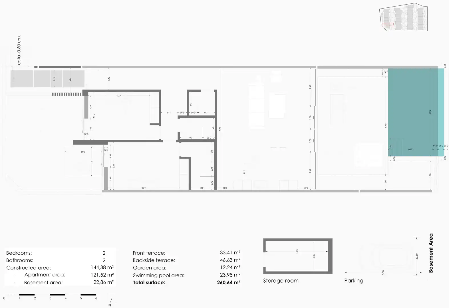
- 2 habs·
- 2 baños·
- 178 m²
- Hace 3 días
Te invitamos a descubrir un estilo de vida de lujo en la hermosa costa del sur de Tenerife. Un nuevo proyecto residencial de obra nueva creado por el reconocido arquitecto Leonardo Omar. Iconic es un complejo residencial que combina a la perfección materiales locales de alta calidad con un diseño contemporáneo y sofisticado. En Iconic, cada apartamento y villa ha sido concebido para ofrecer mucho más que un espacio para descansar. Aquí encontrarás una experiencia de vida completa, donde podrás disfrutar de impresionantes vistas al mar, sumergirte en tu propia piscina privada y relajarte en amplias terrazas privadas. Cada detalle ha sido cuidadosamente pensado para brindarte el máximo confort y lujo. Esta lujosa vivienda de 178,98 m2 te ofrece una experiencia de vida excepcional. Cuenta con 2 elegantes dormitorios y 2 modernos baños, incluyendo uno en suite. La cocina está completamente equipada para satisfacer todas tus necesidades culinarias. Además, podrás disfrutar de una espaciosa terraza de 25 a 65 m2, perfecta para contemplar las vistas panorámicas y disfrutar de momentos de tranquilidad. También incluye aparcamiento en el sótano para mayor comodidad. La ubicación de Callao Salvaje te permitirá maravillarte con los hermosos alrededores mientras disfrutas de agradables paseos, y luego descansar en las hermosas playas cercanas a Iconic. Este complejo residencial se encuentra en el límite del encantador pueblo de Callao Salvaje, donde podrás disfrutar de un ambiente tranquilo y relajante. Además, a poca distancia de la playa, encontrarás una gran variedad de acogedores restaurantes que te ofrecen una amplia gama de opciones gastronómicas. Si eres amante del golf, estarás encantado de saber que el Golf Costa Adeje se encuentra a tan solo 4 km de distancia. Este magnífico campo de golf, con vistas al mar y a la Isla de la Gomera, se adapta perfectamente al entorno natural, brindándote una experiencia única mientras disfrutas de tu deporte favorito. Iconic es la elección perfecta tanto como residencia principal como para una inversión en vivienda vacacional porque está ubicada en una de las zonas de más desarrollo y expansión. No pierdas la oportunidad de convertir este apartamento en tu oasis privado. ¡Contáctanos hoy mismo y descubre la exclusividad y el encanto de este nuevo proyecto!
