Nave industrial en Calle del Tomillo, 4, El Molino
El Molino, Torrevieja
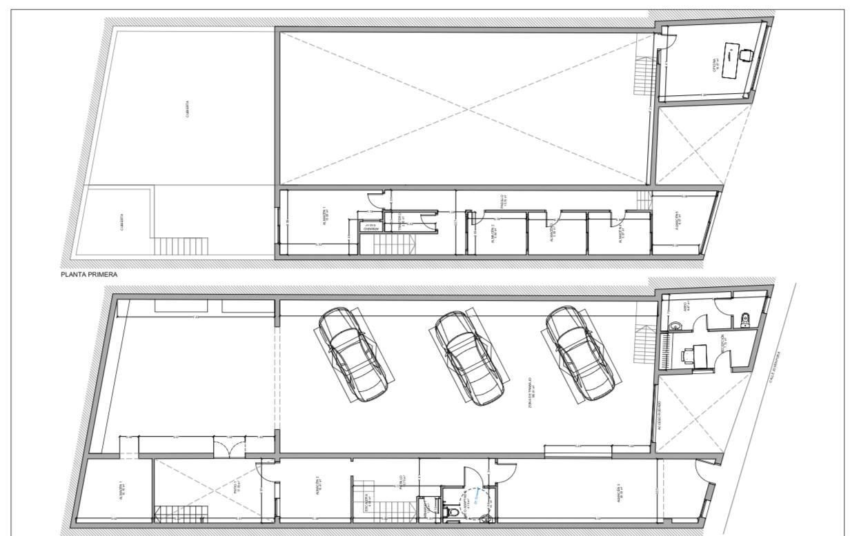
¡OPORTUNIDAD ÚNICA! SE VENDE TALLER DE HIERRO EN EL CENTRO DE TORREVIEJA ¿Buscas montar tu propio negocio o expandir el que ya tienes? Este taller de hierro en funcionamiento es ideal para empezar a trabajar desde el primer día. Ubicación inmejorable: Situado en el centro de Torrevieja, con excelente visibilidad y fácil acceso desde las principales salidas a la autovía. Perfectamente comunicado para proveedores y clientes. Características destacadas: - Nave totalmente equipada con todas las máquinas y herramientas necesarias para continuar la actividad. - Amplio espacio de trabajo, con zonas diferenciadas para corte, soldadura y almacenaje. - Material en stock incluido. - Se entrega con cartera de clientes activa, profesional y proveedores consolidados. - Lista para seguir produciendo sin necesidad de inversión adicional. - Perfecta para estructuras metálicas, carpintería metálica, rejas, puertas, escaleras, etc. ¡Se regala la furgoneta de trabajo! Incluida en el precio, lista para su uso. Traspaso completo del negocio: Incluye absolutamente todo: maquinaria, mobiliario, herramientas, materiales, contactos comerciales y posibilidad de acompañamiento inicial si se desea. Se deja tal cual está, para que empieces a trabajar desde el minuto uno. Contacta ahora y solicita más información o una visita. ¡No dejes pasar esta ocasión de oro!
- 203 m²
