Contrata luz y gas online, sin permanencia

San Fernando de Henares
El Departamento de Industrial y Logístico de Inmoking presenta la comercialización de una nave logística “llave en mano” con una superficie total de 1.007,99 m².
El activo se ubica en San Fernando de Henares, una de las localizaciones más estratégicas y consolidadas del Corredor del Henares, destacada por su excelente conectividad y su consolidado tejido empresarial, lo que la convierte en un enclave ideal para compañías del sector logístico y de distribución.
Se trata de un proyecto llave en mano, diseñado para adaptarse a las necesidades específicas del cliente, garantizando eficiencia, funcionalidad y optimización de los espacios. La entrega del inmueble está prevista en un plazo estimado de 18 meses desde la firma del contrato.
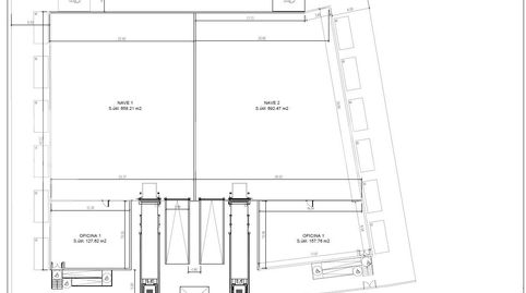
Superficies
Total: 1.007,99 m2
Almacén: 692,47 m2
Oficina: 315,52 m2
Altura Cumbrera: 12,80 m2
Fachada: 26 m
Profundidad: 30,69 m2
Playa de maniobras : 18 m
Características
Estructura: Hormigón
Solera: Hormigón
Oficinas: Acondicionadas
Muelles: 1
Portones: 1
Aseos: Si
Vestuarios: Si
Instalación Eléctrica: Si
Estancias: 2
Sistema contra incendios: Bies
Tipo Iluminación: LED
Última Actividad: Nueva construcción
Disponibilidad: 18 meses desde la firma
Comunicaciones
Distancia Puerto:
Distancia Aeropuerto: 8 km
Distancia Población: 15 km
Transportes:
Carreteras: M-50, M-21, A-2
Somos expertos en asesoramiento inmobiliario empresarial, si necesita una nave nuestro equipo de profesionales especializado le podrá ofrecer soluciones personalizadas, gracias a nuestro conocimiento de mercado, creatividad y dinamismo. Desde InmoKing le aportaremos valor añadido y ventajas competitivas en sus operaciones inmobiliarias. Podemos aportarle cobertura nacional a través de nuestras delegaciones de Madrid y Valencia, ofreciéndole a nuestros expertos en los mercados de retail, oficinas, industrial & logística e inversión, con el compromiso de la confianza, transparencia y dedicación profesional.
Property type
Lift
Contrata luz y gas online, sin permanencia

Elige la Fibra que mejor se adapte a ti.

Please let us know about it so we can correct it.