800 €
Commercial properties in Avenida Fisterra
Cee
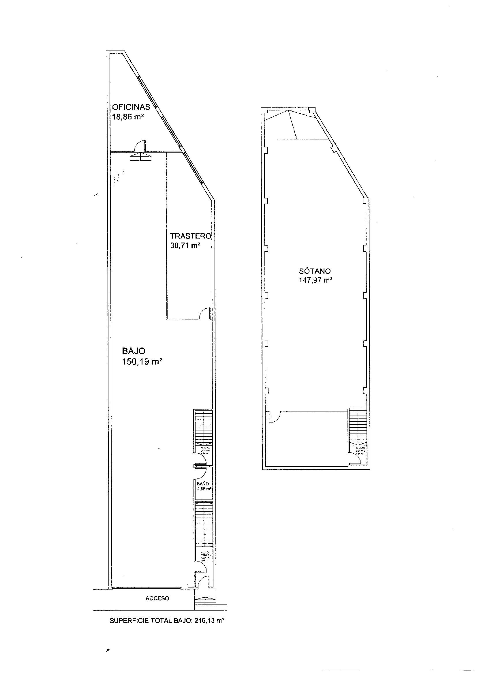
ESTAS BUSCANDO en CEE una superficie de más de 363 m2 compuesto por un SEMISOTANO de 147 m2 ( ideal para almacén, taller, etc) con acceso por la Rúa Pallares ( zona Tranquila ),y por un BAJO COMERCIAL, ideal para negocio, almacén, exposición, etc, ( que se comunican entre si) y con acceso por la céntrica calle de la Avda Fisterra, de 216 m2, bien acondicionado, baño, oficina, zona para almacén o trastero, etc, etc, ESTA ES TU OPORTUNIDAD, NO LOS DEJES ESCAPAR.
- 363 m²
Professional agency
