Residential in Concepción
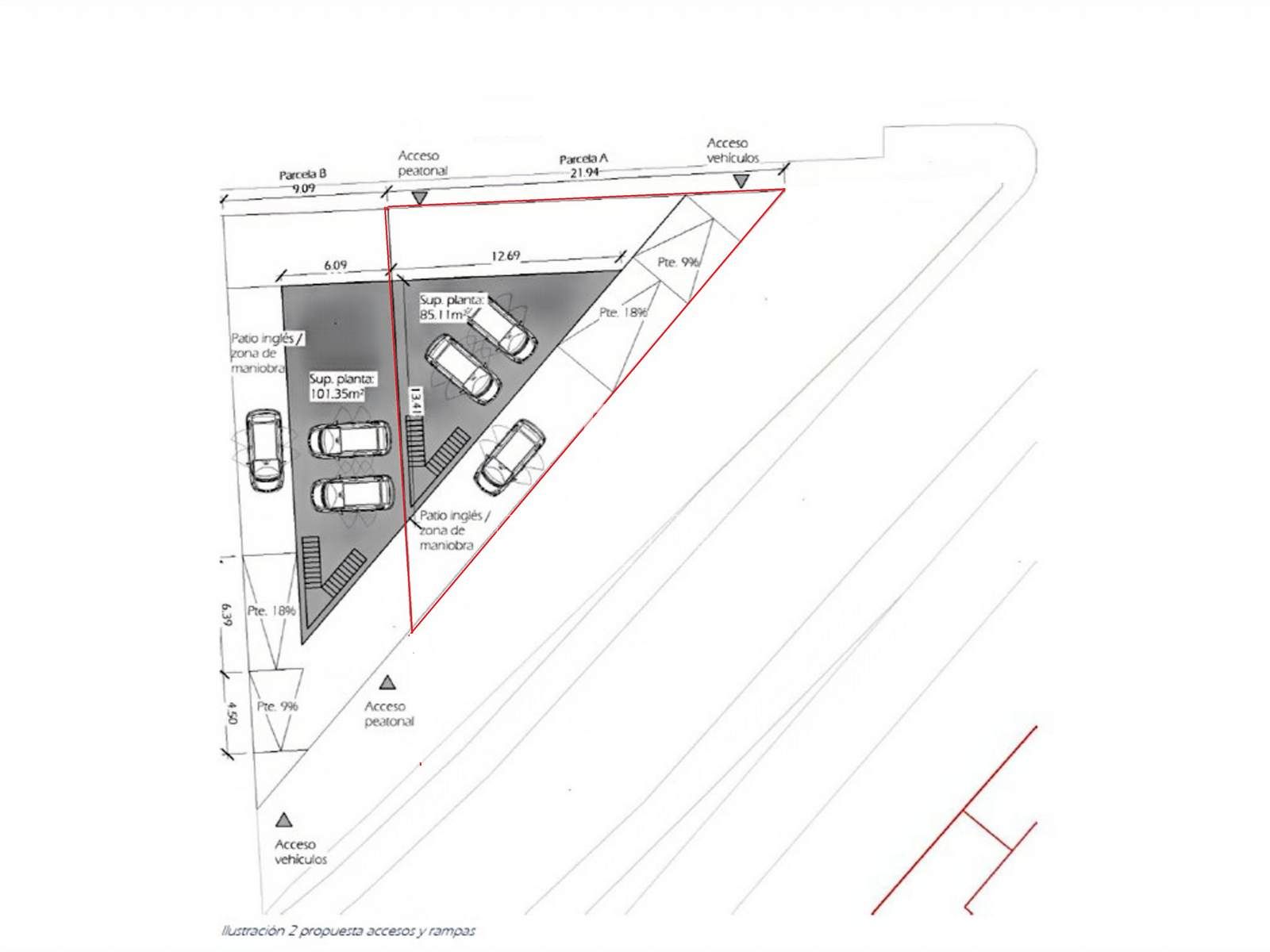
ESTUDIO HOME MADRID OFRECE solar/terreno de 183 m2, actualmente edificando con una vivienda de 168 m2 construidos, con orientación sur, situado en la zona de Arturo Soria. Pertenece a la norma zonal 7 1 A. Solar de 183m², el cual se permite edificar por el 0,35% de ocupación del solar. Se podría construir 63,70m² por planta y su distribución dividida en plantas seria: planta baja, planta primera, más ático. Se trata de una vivienda unifamiliar, que presenta la siguiente distribución: Planta principal: entrada por patio delantero que da acceso a un gran hall recibidor que separa las diferentes estancias. Salón comedor, cocina independiente y baño completo con ducha, todas ellas con ventana a patio delantero. La cocina tiene acceso al garaje, con capacidad para dos vehículos y al patio trasero, el cual incluye un poche con una sala de almacenaje o trastero. La vivienda cuenta con garaje para dos vehículos, tiene acceso directo desde la calle, con salida al patio trasero y a la cocina. Primera planta: subiendo el primer tramo de escaleras accedemos a un hall distribuidor que separa las diferentes estancias, salón con acceso a terraza abierta, cuatro habitaciones, una de ellas con acceso terraza, otra con ventana a terraza, las restantes con ventana a patio trasero y baño completo con ventana a patio trasero. Segunda planta: subiendo el segundo tramo de escaleras acedemos a la terraza solárium, con una superficie similar a la planta principal y primera. En cuanto a sus calidades, el inmueble dispone de puerta de entrada normal; suelos de gres y suelos hidráulicos distribuidos por toda la vivienda; los cerramientos exteriores son de aluminio; pintura gota. El inmueble dispone de calefacción individual con caldera de gas natural. Está ubicada en de la ciudad de Madrid, dentro del distrito municipal de Ciudad lineal, junto a las calles Arturo Soria y Alcalá. Se trata de una zona residencial, cerca de La Quinta de los Molinos. Zona con todos los servicios, como supermercados, farmacias, guarderías, restaurantes …, junto al Centro de Salud Estrecho de Corea y con diferentes colegios, como CEIP Nuestra Señora de la Concepción, colegio Obispo Perelló, Colegio Montpellier… cercano al centro comercial Alcalá norte. Bien comunicada por transporte público, con varias líneas de la EMT (líneas 421, 8, 70, 146) y cercano a la estación de Metro Barrio de la Concepción (línea 7). Hay que destacar su fácil acceso en coche a las carreteras M30 y A2. ESTUDIO HOME MADRID, agencia inmobiliaria con 20 años de experiencia en el sector, les ofrece asesoramiento jurídico, fiscal y financiero, seguimiento personalizado durante todo el proceso de compraventa. Agencia inmobiliaria inscrita en el RAIN (Registro de Agentes Inmobiliarios de la Comunidad de Madrid).
- 183 m²
