Contrata luz y gas online, sin permanencia

Marbella
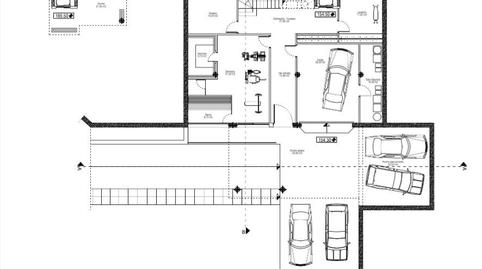
Se vende terreno en urbanización LOS ALTOS DE LOS MONTEROS, MARBELLA (MÁLAGA) con vistas despejadas al mar junto con atractivo proyecto de vivienda unifamiliar de 4 plantas, la licencia de obra sya esta aprobada!. La licencia de obra está incluída en elprecio. El proyecto de obra posee 5 estacionamientos, 3 en garaje y 2 de visita con vistas al mar. En el sótano tenemos un amplio sauna panorámico (vistas al mar), gimnasio y baño turco. Amplio trastero, sala de lavandería y escalera que conecta las 4 plantas y ascensor. En planta baja amplio salón con doble altura y chimenea led, cocina con isla americana, amplia despensa, baño de visitas y despacho. En segunda planta 4 habitaciones cada una con baño, dormitorio principal con walk in closet y bañera con vistas al mar, armarios en el pasillo. En última planta amplio solar en donde se puede colocar instalaciones de barbacoa y descanso. Cuenta con 3 jardines, cada uno puede ser temático. Uso: Residencial Subtipo: Suelo Urbano Superficie: 1.509 m2 Edificabilidad: 458 m2 Eng.: Land for sale in LOS ALTOS DE LOS MONTEROS urbanization, MARBELLA (MÁLAGA) with unobstructed views of the sea along with an attractive 4-storey single-family housing project, the building permit has been issued. The construction project is included in the price. The construction project has 5 parking spaces, 3 in the garage and 2 for visits with sea views. In the basement we have a large panoramic sauna (sea views), gym and Turkish bath. Large storage room, laundry room and staircase that connects the 4 floors and elevator. On the ground floor, a spacious living room with double height and led fireplace, kitchen with American island, large pantry, guest bathroom and office. On the second floor 4 bedrooms each with bathroom, the master room with walking closet and bathtub with sea views., closets in the hallway. On the top floor, a large solar where you can place barbecue and rest facilities. It has 3 gardens, each one can be thematic. Use: Residential Subtype: Urban Land Area: 1,509 m2 Buildable area: 458 m2
Property type
Interest type
Estimated monthly payment
2.355 €
Service offered by
Fotocasa does not act as a financial intermediary. The information provided is for guidance only, based on publicly available market information. The credit institution will contact the potential borrower to negotiate, facilitate, and agree upon the applicable financial conditions.
Mortgage breakdown
Your monthly payment
2.355 € *
For 30 years (360 payments)
Property price:
690.000 €
Taxes and purchase expenses:
43.897 €
Total property cost:
733.897 €
Savings contributed:
138.000 €
Mortgage amount:
595.897 €
Total interest:
251.728 €
Total cost with mortgage
985.625 €
Principal + interest + taxes and fees
Fotocasa does not act as a financial intermediary. The information provided is for guidance only, based on publicly available market information. The credit institution will contact the potential borrower to negotiate, facilitate, and agree upon the applicable financial conditions.
Contrata luz y gas online, sin permanencia

Elige la Fibra que mejor se adapte a ti.

Please let us know about it so we can correct it.