Contrata luz y gas online, sin permanencia
Floor for sale in Plaza de España, 12, Alameda - Mentidero - Teatro Falla
Cádiz Capital
Belongs to Plaza España promotion
GILMAR le ofrece en exclusiva: 14 viviendas de obra nueva de entrega inmediata en un Palacio del siglo XVIII en el emblemático centro Cádiz.
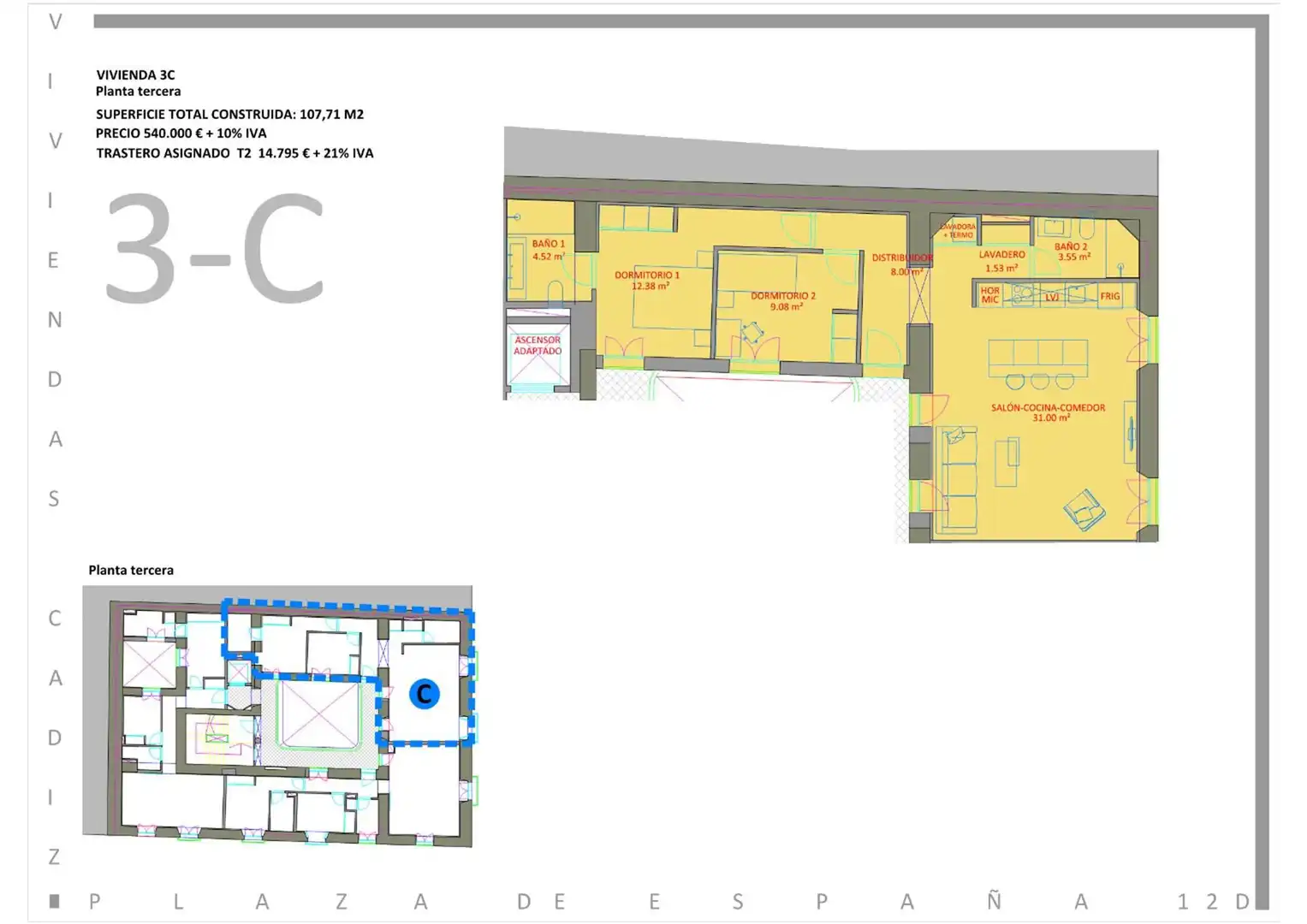
Ubicadas en la emblemática Plaza de España, estas viviendas forman parte de una casa palacio completamente rehabilitada, donde la esencia histórica ha sido cuidadosamente preservada. La fachada y el patio tradicional gaditano se fusionan con un diseño de interiores vanguardista, utilizando los mejores materiales y acabados.
Por deseo expreso del promotor, las viviendas se comercializan una vez finalizada la obra, permitiendo a los nuevos propietarios adquirir un hogar de lujo en una ubicación inmejorable. Con superficies que van desde 74 a 158 m², las 14 viviendas de 1 a 3 dormitorios, 3 viviendas por planta y un ático con vistas espectaculares de Cádiz. Desde 74 a 158 m² construidos, trasteros opcionales en el mismo edificio, desde 11.990€, con posibilidad de acceder a ellos desde el exterior o desde el interior por ascensor.
Cada vivienda cuenta con dos baños, uno en suite en la habitación principal, cocina completamente amueblada, un trastero propio en el edificio y una atención al detalle que garantiza la diferencia.
No pierda la oportunidad de vivir en un entorno histórico con todas las comodidades modernas. Solicite información hoy mismo y le contactaremos de inmediato.
Housing features
Basic features
Energy certificate
Properties of this promotion
12 Housing in this promotion
Belongs to
PLAZA ESPAÑA
Promotion From 285.000 €
Plaza de España, 12, Cádiz Capital
- Rooms:From 1 to 5
- Bathrooms:From 1 to 3
- Size:From 73 m² to 158 m²
Interest type
Estimated monthly payment
1.844 €
Service offered by
Fotocasa does not act as a financial intermediary. The information provided is for guidance only, based on publicly available market information. The credit institution will contact the potential borrower to negotiate, facilitate, and agree upon the applicable financial conditions.
Mortgage breakdown
Your monthly payment
1.844 € *
For 30 years (360 payments)
Property price:
540.000 €
Taxes and purchase expenses:
34.747 €
Total property cost:
574.747 €
Savings contributed:
108.000 €
Mortgage amount:
466.747 €
Total interest:
197.170 €
Total cost with mortgage
771.917 €
Principal + interest + taxes and fees
Fotocasa does not act as a financial intermediary. The information provided is for guidance only, based on publicly available market information. The credit institution will contact the potential borrower to negotiate, facilitate, and agree upon the applicable financial conditions.
Elige la Fibra que mejor se adapte a ti.