Contrata luz y gas online, sin permanencia
- 4 bdrm.
- 3 bathrooms
- 251 sqm
Houses for sale in Barrio de la Tarriba, 21, San Felices de Buelna
San Felices de Buelna
Casa en construcción en San Felices de Buelna - Cantabria.
Si lo que busca es invertir en calidad de vida, o desarrollar un negocio turístico en un sector cada vez más demandado como es el turismo rural, descubra esta casa pareada situada en una ubicación privilegiada, ya que se encuentra en un bonito entorno rodeado de naturaleza, pero con todos los servicios cerca, lo que ofrece la combinación perfecta entre la tranquilidad del campo y la comodidad del acceso a comercios, colegios, transporte y otros equipamientos esenciales.
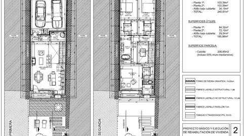
Esta vivienda de 240 m2 construidos combina el carácter tradicional y rústico de la piedra y la madera.
Actualmente está en proceso de rehabilitación integral, combinando un diseño moderno con materiales de alta calidad, y todo ello con el estricto cumplimiento de la normativa vigente.
Características destacadas:
-Estructura renovada: En 2024, se construyó la nueva estructura con vigas de hierro y hormigón, permitiendo espacios abiertos y una distribución muy diáfana.
-Cimentación: Al mismo tiempo, también se llevaron a cabo las obras de cimentación, instalando la red de saneamiento y los sistemas de drenaje de toda la vivienda.
-Aislamiento térmico superior: Se ha utilizado termoarcilla en las paredes, mejorando el aislamiento térmico y acústico, lo que contribuye a una mayor eficiencia energética y al confort en el hogar.
-Tejado renovado: El tejado acaba de ser rehabilitado totalmente, incluyendo la instalación de dos ventanas Velux, que aportan luminosidad natural y ventilación a toda la vivienda.
Fachada con enfoscado hidrófugo finalizada.
Ventajas para el comprador:
-Certificación energética optimizada: Gracias a las mejoras en aislamiento y estructura, la vivienda alcanzará una alta calificación energética, reduciendo costes de calefacción y refrigeración.
-Diseño personalizado: los compradores podrán terminar la rehabilitación, según el proyecto original del propietario, o adaptarla a sus propias necesidades o preferencias, y con una excelente proyección tanto para vivienda familiar como para alojamiento rural, y todo sin renunciar a las comodidades de la vida moderna.
Además, dispone de un garaje con capacidad para dos vehículos, perfecto para las familias, o para quienes valoran el espacio adicional, y en la parte delantera de la propiedad, encontrará un jardín orientado al sur de aproximadamente 90 m2, ideal para disfrutar del sol durante todo el día, instalar una zona de estar al aire libre o incluso crear su propio huerto.
¡No dude en contactar para más información o concertar una visita!
Gastos de la transacción:
Compra sujeta al impuesto de transmisiones Patrimoniales. El adquiriente se hará cargo del coste de la escritura y su inscripción en el Registro de la Propiedad.
More filters
Property type
HousesAvailability
AvailableOrientation
SouthAge
1 to 5 yearsGarage
PrivateLift
NoFurnished
NoEnergy
Energy rating label:ExemptEmissions
Energy rating label:Exempt
- Balcony
Interest type
Estimated monthly payment
531 €
Service offered by
Fotocasa does not act as a financial intermediary. The information provided is for guidance only, based on publicly available market information. The credit institution will contact the potential borrower to negotiate, facilitate, and agree upon the applicable financial conditions.
Mortgage breakdown
Your monthly payment
531 € *
For 30 years (360 payments)
Property price:
149.000 €
Taxes and purchase expenses:
15.313 €
Total property cost:
164.313 €
Savings contributed:
29.800 €
Mortgage amount:
134.513 €
Total interest:
56.823 €
Total cost with mortgage
221.136 €
Principal + interest + taxes and fees
Fotocasa does not act as a financial intermediary. The information provided is for guidance only, based on publicly available market information. The credit institution will contact the potential borrower to negotiate, facilitate, and agree upon the applicable financial conditions.
Elige la Fibra que mejor se adapte a ti.