Contrata luz y gas online, sin permanencia
- 1 bdrm.
- 1 bathroom
- 64 sqm
Single-family semi-detached for sale in Calle Quevedo, Centro
Puertollano
La propiedad, actualmente se encuentra por construir. Se realizaron cimientos con zunchos y tratamiento hidrófugo de la mejor calidad. Tiene realizada una estructura de pilares y vigas de hierro de gran calibre para mayor garantía, donde se ha construido un forjado con vigas de cemento y bovedillas que sirve para aprovechar la superficie habitable y hacer una habitación y un cuarto de baño. Las paredes se sanearon a conciencia, debido a la alta humedad que existía. Se trataron con morteros hidrófugos especiales, aislamiento con mantas de plástico y poliespan. Después se subieron las paredes con bloques de termoarcilla, de manera que la propiedad está protegida de la humedad y con buen aislamiento por ambos lados. Tiene un patio pequeñito para ofrecer luminosidad. Con la demolición de la casa que había derruida, la retirada de residuos, y las mejoras que se han hecho, se ha realizado una inversión de 9000 euros. La persona que adquiera esta propiedad no tendrá que preocuparse de tirar escombros ni realizar más obra que subir paredes en limpio y hacer el tejado y fachada.
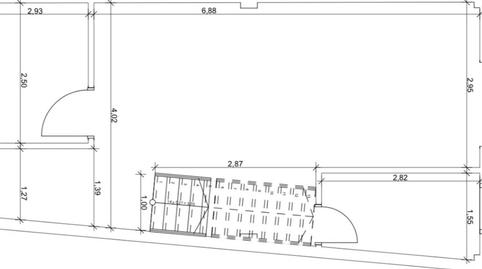
El diseño planteado era hacer un loft de espacio abierto, contando en la planta de abajo con una habitación, salón, cocina americana y un cuarto de baño. En la parte de arriba, se podría hacer una habitación grande con cuarto de baño y vestidor. Se deja una foto del diseño que se hizo como idea.
Para contactar, puede llamar entre las dos y las tres y media, o deje un whatsapp al Nº seis, uno, uno, cuatro, cuatro, tres, dos, tres, cero.
Para continuar el proyecto, se precisará obtener una licencia municipal de obras.
More filters
Property type
Terraced houseAvailability
AvailableOrientation
North-westCondition
For renovationAge
70 to 100 yearsLift
NoFurnished
NoEnergy
Energy rating label:GEmissions:999 kg CO₂ m² / yearEmissions
Energy rating label:GEmissions:999 kg CO₂ m² / year
Interest type
Estimated monthly payment
858 €
Service offered by
Fotocasa does not act as a financial intermediary. The information provided is for guidance only, based on publicly available market information. The credit institution will contact the potential borrower to negotiate, facilitate, and agree upon the applicable financial conditions.
Mortgage breakdown
Your monthly payment
858 € *
For 30 years (360 payments)
Property price:
250.000 €
Taxes and purchase expenses:
17.071 €
Total property cost:
267.071 €
Savings contributed:
50.000 €
Mortgage amount:
217.071 €
Total interest:
91.698 €
Total cost with mortgage
358.769 €
Principal + interest + taxes and fees
Fotocasa does not act as a financial intermediary. The information provided is for guidance only, based on publicly available market information. The credit institution will contact the potential borrower to negotiate, facilitate, and agree upon the applicable financial conditions.
Elige la Fibra que mejor se adapte a ti.




