Contrata luz y gas online, sin permanencia
- 4 bdrm.
- 2 bathrooms
- 120 sqm
- 3rd floor
Duplex for sale in Madre de Dios
Jerez de la Frontera
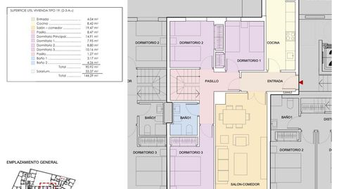
ATICO DUPLEX A. Consta de 4 dormitorios, 2 baños y 2 terrazas.
Las viviendas, trasteros y garajes a la venta se ejecutaron según proyecto que obtuvo licencia en 2007, por lo que las prestaciones del conjunto y la normativa de aplicación es la vigente en aquella fecha, no cumpliendo con el Código Técnico de la Edificación actual. Se ha aplicado la normativa actual (CTE) en las partidas pendientes de ejecutar a la fecha de comienzo de las obras y que se reflejan en el proyecto de terminación redactado en 2024.
CIMENTACIÓN Y ESTRUCTURA
La estructura es de hormigón armado y se ejecutó según las prescripciones de la ENE-02, EA-95, EF-96, AE-88 y la NCSE-02.
FACHADA
Cerramientos exteriores formado por citaras, aislamiento y hoja interior, con monocapa pintado o chapado en piedra natural.
CUBIERTA
Formadas por solado sobre mortero de protección e impermeabilización mediante lámina asfáltica.
DIVISIONES INTERIORES
En la división entre viviendas formada por hoja simple maciza cerámica.
Las distribuciones interiores de las viviendas se realizan con tabicón de ladrillo de gran formato.
PAVIMENTOS
Las viviendas irán soladas con tarima flotante con acabado a decidir por la promotora, dureza mínima AC4. Baños y cocinas soladas con baldosas porcelánicas. Zonas comunes en piedra natural.
Solado de terrazas con gres antideslizantes.
CARPINTERÍA INTERIOR
Puertas de paso y frentes de armarios lacado en color blanco. Armarios empotrados modulares de hojas abatibles. Puerta de entrada a la vivienda con bisagras antipalanqueta y con cerradura de seguridad en acabado blanco.
CARPINTERÍA EXTERIOR
PVC en color blanco al interior y color marrón oscuro al exterior. Con acristalamiento mediante vidrios stadip con cámara termoacústica en su interior. Vidrio de seguridad en balcones según normativa.
Persianas de aluminio en dormitorios.
FONTANERIA
Red de distribución interior de agua con tubería de polietileno reticulado y desagües de PVC.
Punto de agua exterior en viviendas en planta baja.
APARATOS SANITARIOS Y GRIFERIA
Sanitarios en porcelana vitrificada blanca, bañera de chapa esmaltada y plato de ducha de resina.
Lavabo con diseño de encimera incorporada o con mueble o similar tanto en baño secundario como en el principal. Grifería cromada mono mando con control de caudal.
CLIMATIZACION
Preinstalación de aire acondicionado para bomba de calor mediante instalación de conductos y rejillas de impulsión, excepto núcleos húmedos, cocina, distribuidor y vestíbulo.
AGUA CALIENTE SANITARIA
Sistema de producción de agua caliente sanitaria mediante calentador eléctrico.
ALICATADOS
Cocina plaquetas cerámicas hasta falso techo. Baños con alicatados completos con plaquetas cerámicas hasta el techo.
PINTURAS
En interiores, pintura plástica acabado liso color blanco en paredes y techos.
REVESTIMIENTOS INTERIORES
Pintura sobre enlucidos de yeso y techos de cartón-yeso. En baños donde se deja la preinstalación de máquinas serán techos desmontables.
ELECTRICIDAD
Instalación eléctrica según reglamento de baja tensión. Grado de electrificación elevada.
Portero automático en interior de viviendas
Punto de luz y enchufe en terraza.
TELECOMUNICACIÓN
Instalaciones según reglamento de telecomunicaciones. Con tomas de TV y teléfono en salón, dormitorios y cocina.
ZONA COMÚN
Urbanización privada cerrada, con puerta de acceso peatonal con portero automático.
Ascensores con puertas automáticas hasta garaje.
Vestíbulos de ascensores y pasillos con detección presencia y control de tiempo de alumbrado.
Garaje con puerta de acceso de vehículos motorizada, con mando a distancia.
Escaleras, vestíbulos y distribución interiores solados en piedra natural.
Se dispondrá de instalación fotovoltaica para aprovechamiento de la comunidad de propietarios.
GARANTÍA
Todas las cantidades entregadas antes de la conclusión de las obras y obtención de la licencia de primera ocupación serán garantizadas mediante Aval ó Seguro.
CONTROL DE OBRA
Control de Calidad de Ejecución de Obra por Organismo de Control Técnico Homologado.
SEGURO
Seguro de Responsabilidad Decenal según Ley de Ordenación de la Edificación.
Estas calidades al igual que la información gráfica y escrita, pueden ser susceptibles de modificaciones por la promotora, administración y dirección facultativa de las obras. Los materiales podrán sufrir modificaciones, sin que ello implique menoscabo en el nivel global de las calidades, si por necesidades de orden técnico, jurídico, de mercado o cualquier otra circunstancia, así lo estime la dirección facultativa, siempre que a juicio de esta no perjudique la calidad de las viviendas, no suponiendo compromiso contractual.
More filters
Property type
DuplexAvailability
AvailableHot water
ElectricityFloor
3rd FloorLift
YesFurnished
NoEnergy
Energy rating label:BEmissions:15 kg CO₂ m² / yearEmissions
Energy rating label:BEmissions:3 kg CO₂ m² / year
- Heating
- Terrace
Interest type
Estimated monthly payment
864 €
Service offered by
Fotocasa does not act as a financial intermediary. The information provided is for guidance only, based on publicly available market information. The credit institution will contact the potential borrower to negotiate, facilitate, and agree upon the applicable financial conditions.
Mortgage breakdown
Your monthly payment
864 € *
For 30 years (360 payments)
Property price:
252.000 €
Taxes and purchase expenses:
17.191 €
Total property cost:
269.191 €
Savings contributed:
50.400 €
Mortgage amount:
218.791 €
Total interest:
92.425 €
Total cost with mortgage
361.616 €
Principal + interest + taxes and fees
Fotocasa does not act as a financial intermediary. The information provided is for guidance only, based on publicly available market information. The credit institution will contact the potential borrower to negotiate, facilitate, and agree upon the applicable financial conditions.
Elige la Fibra que mejor se adapte a ti.