Contrata luz y gas online, sin permanencia
- 3 bdrm.
- 2 bathrooms
- 120 sqm
Houses for sale in Gilet
Gilet
Terreno con proyecto en Urb. Pla de la venta. Gilet.
vistas, naturaleza, tranquilidad cercana al nucleo.
OPORTUNIDAD ÚNICA – PARCELA + PROYECTO DE VIVIENDA MODULAR DE ALTA EFICIENCIA ✨
Si quieres construir tu hogar sin empezar desde cero y con una parte importante del camino ya avanzada, esta es una oportunidad que marca la diferencia.
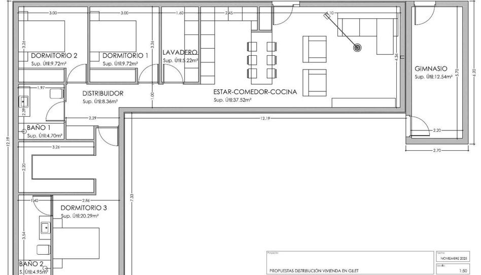
Se vende parcela de 530 m² con proyecto avanzado para la construcción de una vivienda modular de 120 m², diseñada bajo criterios de máxima eficiencia energética, confort y calidad constructiva. El proyecto cuenta ya con un 40% del coste total ejecutado, en el que el 60% restante ascenderia a 145.000€ aproximadamente, lo que supone una ventaja económica significativa y un importante ahorro de tiempo en el proceso.
La vivienda ha sido concebida con una distribución moderna y funcional, pensada para el día a día y el bienestar. Dispone de 3 dormitorios, un baño completo, un aseo, vestidor independiente y una zona destinada a gimnasio privado. La cocina abierta se integra en el salón-comedor, creando un espacio amplio, luminoso y actual, ideal para disfrutar en familia o con amigos.
El proyecto destaca especialmente por su enfoque en la eficiencia y el confort. Se han previsto soluciones constructivas con altos niveles de aislamiento térmico y acústico, garantizando bienestar durante todo el año y un notable ahorro energético. Asi como las placas solares que avastecen la vivienda.
Además, existe la posibilidad de personalizar calidades para adaptarlas a las preferencias del comprador, así como la opción de incorporar piscina, aumentando aún más el valor y atractivo de la vivienda.
Una propuesta ideal tanto para vivienda habitual como para inversión, con diseño contemporáneo, eficiencia y capacidad de adaptación.
Si quieres saber mas sobre las calidades del proyecto, llamame.
Hablamos español y francés, y estaremos encantados de ayudarte.
¡Contáctanos hoy mismo para más información!
More filters
Property type
HousesAvailability
AvailableAge
Less than 1 yearLift
NoFurnished
NoEnergy
Energy rating label:GEmissions:999 kg CO₂ m² / yearEmissions
Energy rating label:GEmissions:999 kg CO₂ m² / year
- Air Conditioning
Interest type
Estimated monthly payment
584 €
Service offered by
Fotocasa does not act as a financial intermediary. The information provided is for guidance only, based on publicly available market information. The credit institution will contact the potential borrower to negotiate, facilitate, and agree upon the applicable financial conditions.
Mortgage breakdown
Your monthly payment
584 € *
For 30 years (360 payments)
Property price:
162.000 €
Taxes and purchase expenses:
18.103 €
Total property cost:
180.103 €
Savings contributed:
32.400 €
Mortgage amount:
147.703 €
Total interest:
62.395 €
Total cost with mortgage
242.498 €
Principal + interest + taxes and fees
Fotocasa does not act as a financial intermediary. The information provided is for guidance only, based on publicly available market information. The credit institution will contact the potential borrower to negotiate, facilitate, and agree upon the applicable financial conditions.
Elige la Fibra que mejor se adapte a ti.