Contrata luz y gas online, sin permanencia
- 2 bdrm.
- 1 bathroom
- 112 sqm
Houses for sale in Carrer Comerç, 2, Cruïlles, Monells I Sant Sadurní de L'Heura
Cruïlles, Monells I Sant Sadurní de L'Heura
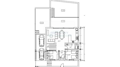
Vivienda de obra nueva en Puigventós
Se ofrece vivienda de obra nueva en Puigventós, diseñada con una distribución funcional y espacios amplios que priorizan la comodidad y la luz natural.
La vivienda dispone de una zona de día abierta, donde salón, comedor y cocina se integran en un mismo espacio, creando un ambiente moderno y acogedor, ideal para el uso diario y para reuniones. La distribución favorece la entrada de luz natural y una conexión fluida entre estancias.
La zona de descanso cuenta con dos dormitorios, un baño completo y un aseo, ofreciendo una organización práctica y confortable. Además, se incluyen espacios pensados para el almacenamiento y el aprovechamiento óptimo de la superficie.
La propiedad dispone de garaje con capacidad para dos vehículos y zonas exteriores que amplían las posibilidades de uso de la vivienda.
Construida con materiales de calidad y criterios de eficiencia energética, esta vivienda de obra nueva ofrece confort, diseño contemporáneo y una cuidada ejecución.
Una excelente oportunidad para estrenar vivienda en Puigventós, en un entorno tranquilo y bien comunicado.
#ref:CAS_417
More filters
Property type
HousesAvailability
AvailableCondition
Very goodGarage
PrivateLift
NoFurnished
NoEnergy
Energy rating label:GEmissions:999 kg CO₂ m² / yearEmissions
Energy rating label:GEmissions:999 kg CO₂ m² / year
Interest type
Estimated monthly payment
1.484 €
Service offered by
Fotocasa does not act as a financial intermediary. The information provided is for guidance only, based on publicly available market information. The credit institution will contact the potential borrower to negotiate, facilitate, and agree upon the applicable financial conditions.
Mortgage breakdown
Your monthly payment
1.484 € *
For 30 years (360 payments)
Property price:
415.000 €
Taxes and purchase expenses:
43.699 €
Total property cost:
458.699 €
Savings contributed:
83.000 €
Mortgage amount:
375.699 €
Total interest:
158.708 €
Total cost with mortgage
617.407 €
Principal + interest + taxes and fees
Fotocasa does not act as a financial intermediary. The information provided is for guidance only, based on publicly available market information. The credit institution will contact the potential borrower to negotiate, facilitate, and agree upon the applicable financial conditions.
Elige la Fibra que mejor se adapte a ti.
Tu vivienda protegida cuando estas fuera
Detecta defectos ocultos antes de comprar