Flat in Avinguda de Sa Fonera, 29, Porto Cristo
Porto Cristo, Manacor
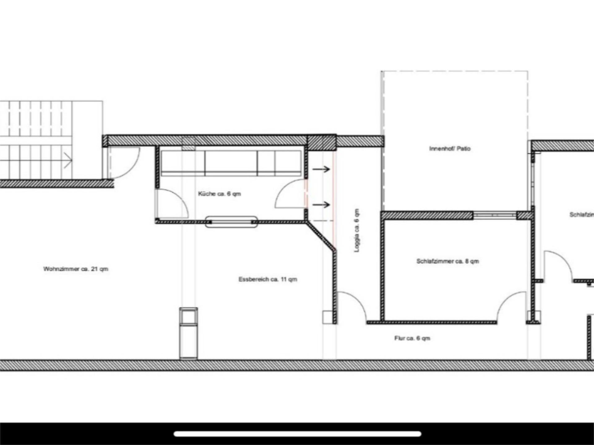
Sie erfüllen sich in Porto Cristo mit dieser wundervollen Stadtwohnung den Wunsch nach einer authentischen Wohnung im Herzen des Ortes. Hoch über der Stadt, mit atemberaubendem Blick über die Dächer bis hin zum offenen Meer, ist diese helle Wohnung ein Ort zum Ankommen. Die 78 qm Wohnung empfängt Sie mit einem offenen Wohnkonzept und mediterranem Flair. Wohn- und Essbereich sind grosszügig geschnitten und die Küche befindet sich direkt nebenan. Zwei Schlafzimmer bieten genug Platz für eine kleine Familie. Das Bad und die Küche befinden sich in den letzten Zügen der Renovierung. Ein weiteres Highlight ist die großzügige, gemeinschaftlich genutzte Dachterrasse. Von hier aus eröffnet sich ein Panorama, dass jeden Moment zu etwas Besonderen macht. Dieses Zuhause ist mehr als nur eine Wohnung. Es ist ein Ort voller Potential- für sonnige Tage, fantastische Abende, für den authentischen mallorquinischen Lebensstil. ¡¡¡No me interesa una agencia inmobiliaria!!!
- 2 rooms·
- 1 bath·
- 80 m²·
- Terrace
