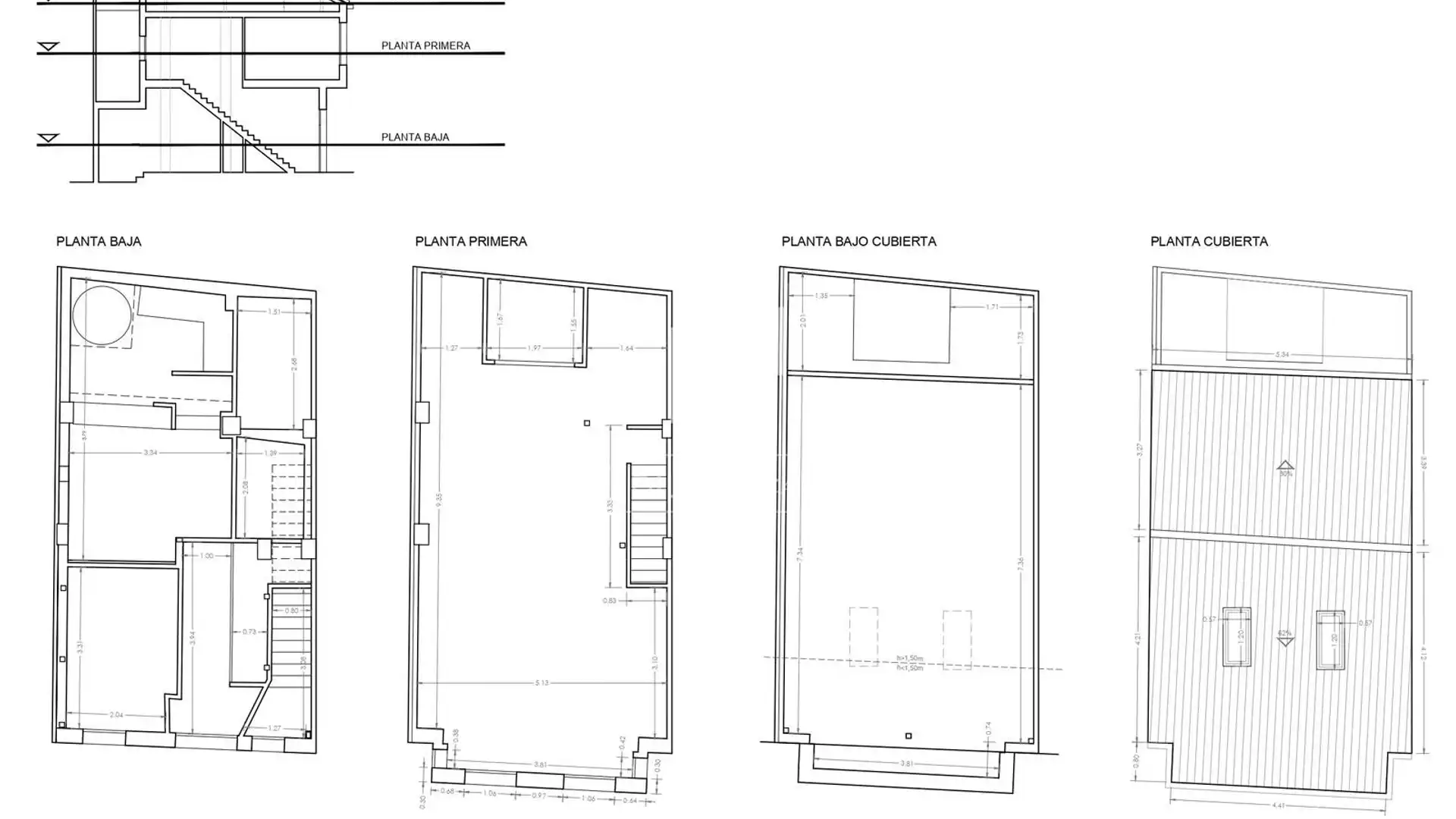
Descubre el potencial de esta casa entre medianeras en el consolidado barrio de Patraix, junto al Hospital Universitario Doctor Peset, una zona con excelente conexión al centro de Valencia y rodeada de todos los servicios: comercios, colegios, transporte público y zonas de vida de barrio con carácter auténtico. La propiedad cuenta actualmente con dos plantas y accesos independientes, lo que abre múltiples posibilidades de redistribución. Se trata de una vivienda para reforma integral, ideal para quienes buscan diseñar su hogar desde cero o desarrollar un proyecto a medida. Existe una propuesta de transformación en una vivienda unifamiliar de dos alturas más buhardilla, pensada para maximizar el espacio, ganar luminosidad y mejorar la eficiencia energética. El planteamiento permite crear una cómoda zona de día en planta baja, una zona de descanso en planta superior y un espacio polivalente en la buhardilla, adaptable como despacho, suite o sala de ocio. Ubicada en un barrio en plena evolución, Patraix combina tradición y crecimiento, lo que convierte esta propiedad en una excelente oportunidad tanto para vivienda habitual como para inversión, con gran potencial de revalorización tras la reforma “En cumplimiento de las obligaciones de información previstas en la Ley 10/2025 de Servicios de Atención a la Clientela y Transparencia, se hace constar que los gastos de notaría y registro, así como el Impuesto de Transmisiones Patrimoniales (ITP) de la comunidad autónoma donde se ubica el inmueble, no están incluidos en el precio. Asimismo, los gastos correspondientes de gestión e intermediación inmobiliaria tampoco se encuentran incluidos.
-
-
-
-
-
Discover other properties near Hospital Pare Jofré, Valencia
-
-
-
-
-
-
-
-
-
-
-
-
-
-
-
-
-
-
-
-
-
-
-
-
-
-
-
-
-
-
-
-
-
-
-
-
-
-
-
-
-
-
-
-
-
-
-
-
-
-
-
-
-
-
-
-
-
-
-
-
-
-
-
-
-
-
-
-
-
-
-
-
-
-
-
-
-
-
-
-
-
-
-
-
-
-
-
-
-
-
-
-
-
-
-
-
-
-
-
-
-
-
-
-
-
-
-
-
-
-
-
-
-
-
-
-
-
-
-
-
-
-
-
-
-
-
-
-
-
-
-
-
-
-
-
-
-
-
-
-
-
-
-
-
-
-
-
-
-
-