Contrata luz y gas online, sin permanencia
- 63 sqm
Premises for sale in Sants
Barcelona Capital
Local/vivienda ubicado en el centro de Les Corts, a pasos de calle Berlín y calle Numancia, en zona muy residencial.
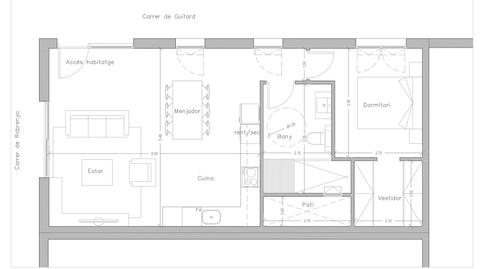
Se trata de una propiedad en planta baja y esquinera, totalmente diáfana y con muchísima luz natural.
Sus 63m2 totalmente diáfanos le permiten proyectar distintas distribuciones para una vivienda de 1 o 2 dormitorios, tenemos un plano configurado para una vivienda de 1 dormitorio.
Tiene un pequeño patio interno de 3m2, y también goza de 3m de altura.
Se puede realizar una pequeña joya allí.
Hay una obra de reforma global que realizar.
Les Corts es un lugar ideal para quien busca una residencia en un entorno con mucha tranquilidad pero muy cercano a todos los puntos claves de la ciudad.
Hay numerosas líneas de bus muy cercanas, y también varias estaciones de metro, sin olvidar la cercanía de la estación de Sants.
No dude en contactarnos para solicitar una visita.
CATALÁ
Local/habitatge situat en el centre de Les Corts, a passos de carrer Berlín i carrer Numància, en zona molt residencial.
Es tracta d'una propietat en planta baixa i esquinera, totalment diàfana i amb moltíssima llum natural.
Els seus 63m2 totalment diàfans li permeten projectar diferents distribucions per a un habitatge d'1 o 2 dormitoris, tenim un pla configurat per a un habitatge d'1 dormitori.
Té un petit pati intern de 3m2, i també gaudeix de 3m d'altura.
Es pot realitzar una petita joia allí.
Hi ha una obra de reforma global que realitzar.
Les Corts és un lloc ideal per a qui busca una residència en un entorn amb molta tranquil·litat però molt pròxim a tots els punts claus de la ciutat.
Hi ha nombroses línies de bus molt pròximes, i també diverses estacions de metro, sense oblidar la proximitat de l'estació de Sants.
No dubti a contactar-nos per a sol·licitar una visita.
ENGLISH
Commercial premises /apartment located in the center of Les Corts, a few steps from Berlin and Numancia street, in a very residential area.
It is a property located on the ground floor and cornerback, totally open space and with lots of natural light.
Its 63m2 full open space allows the projection of different distributions for a home of 1 or 2 bedrooms, we have a floorplan configured for a flat of 1 bedroom.
It has a small internal patio of 3m2, and also enjoys 3m of height ceiling.
You can transform this place into a little gem.
There is a full renovation to be carried out.
Les Corts is an ideal place for those looking for a residence in a very peaceful environment but very close to the main points of the city.
There are numerous bus lines very close by, and also several metro stations, not forgetting the proximity of Sants train station.
Do not hesitate to contact us to request a viewing.
More filters
Property type
Commercial premisesAge
50 to 70 yearsFurnished
NoEnergy
Energy rating label:GEmissions:419 kg CO₂ m² / yearEmissions
Energy rating label:GEmissions:100 kg CO₂ m² / year
Interest type
Estimated monthly payment
790 €
Service offered by
Fotocasa does not act as a financial intermediary. The information provided is for guidance only, based on publicly available market information. The credit institution will contact the potential borrower to negotiate, facilitate, and agree upon the applicable financial conditions.
Mortgage breakdown
Your monthly payment
790 € *
For 30 years (360 payments)
Property price:
220.000 €
Taxes and purchase expenses:
23.996 €
Total property cost:
243.996 €
Savings contributed:
44.000 €
Mortgage amount:
199.996 €
Total interest:
84.485 €
Total cost with mortgage
328.481 €
Principal + interest + taxes and fees
Fotocasa does not act as a financial intermediary. The information provided is for guidance only, based on publicly available market information. The credit institution will contact the potential borrower to negotiate, facilitate, and agree upon the applicable financial conditions.
Elige la Fibra que mejor se adapte a ti.