Contrata luz y gas online, sin permanencia

Málaga Capital
1. EL PROYECTO: DONDE EL SIGLO XIX SE UNE AL 2026.
Gran oportunidad de adquirir no solo este magnifico Hotel; es un proyecto de recuperación arquitectónica.
La actual fase de modernización garantiza que el comprador reciba un inmueble que cumple con las normativas más exigentes, manteniendo su alma histórica.
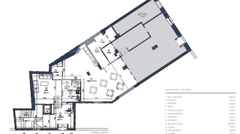
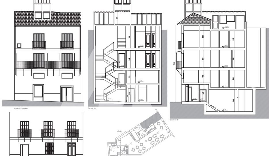
Superficie: 600 m² distribuidos en 4 plantas optimizadas.
Capacidad: 13 habitaciones diseñadas para maximizar el RevPAR (Ingreso por habitación disponible).
La Joya del Ático: Un exclusivo ático con torreón que ofrece una de las experiencias de alojamiento más singulares de la ciudad.
Actualización: El cierre actual permite al nuevo propietario entrar en la fase final de personalización o reestrenar un producto impecable, sin vicios ocultos y con sistemas de climatización y eficiencia energética renovados.
2. ESPACIOS CON PERSONALIDAD PROPIA
La modernización respeta los elementos que dotan al edificio de un valor patrimonial incalculable;
Arquitectura Original: Techos de gran altura que multiplican la sensación de lujo y suelos hidráulicos recuperados que son tendencia en el diseño de interiores de alto standing.
Zonas Comunes: El proyecto potencia la gran terraza chill-out. Un mirador privado sobre el centro histórico, ideal para el desarrollo de una oferta de coctelería o desayunos premium con vistas al skyline malagueño.
Diseño Funcional: Estancias que apuestan por la luz natural, la sencillez elegante y la integración de tecnología domótica para mejorar la experiencia del huésped.
3. UBICACIÓN: EL ACTIVO MÁS VALIOSO
Situado en una calle tranquila pero estratégica, el hotel ofrece un silencio absoluto a pocos metros del "corazón palpitante" de Málaga:
Cultura y Museos: A pasos del Teatro Cervantes, el Museo Jorge Rando y la Fundación Picasso.
Patrimonio: Distancia a pie mínima a la Plaza de la Merced, la Alcazaba y la Catedral.
En el epicentro de la mejor hostelería local, cerca de Calle Larios y a solo 15-20 minutos caminando de la Playa de la Malagueta.
4. POTENCIAL DE INVERSIÓN (BUSINESS CASE)
Ventaja Competitiva Impacto para el Inversor.
Estado "A Estrenar" Ahorro inmediato en CAPEX y mantenimiento a corto/medio plazo.
Licencia Hotelera Activo con todos los permisos en regla en una zona con restricciones severas para nuevos hoteles.
Segmento Boutique Alta demanda por parte de nómadas digitales y turismo cultural de alto poder adquisitivo.
Málaga 2026 La ciudad con mayor proyección tecnológica y turística del sur de Europa.
RESUMEN TÉCNICO
Ubicación: Málaga Centro.
Superficie: 600 m².
Habitaciones: 13 (incluyendo suites con balcón y ático con torreón).
Estado actual: Cerrado por modernización (fase de optimización de instalaciones y acabados).
Extras: Terraza panorámica, fachada histórica protegida, diseño minimalista-clásico.
Las fotografías del anuncio no representan toda la realidad del mismo.
Se ampliará información por teléfono o email.
Se requiere:
- LOI (Carta de Intenciones) firmada.
- Prueba de Solvencia (POF).
- Aceptación de las condiciones de venta en el estado físico y jurídico actual
EL PRECIO DE VENTA NO INCLUYE:
Honorario de la gestión inmobiliaria , impuestos según ley Decreto 218/2005 Junta de Andalucía, gastos e impuestos derivados de la Compra no están incluidos en el precio ( ITP, AJD, Notaría .etc.. )
Property type
Energy
Emissions
Interest type
Estimated monthly payment
10.209 €
Service offered by
Fotocasa does not act as a financial intermediary. The information provided is for guidance only, based on publicly available market information. The credit institution will contact the potential borrower to negotiate, facilitate, and agree upon the applicable financial conditions.
Mortgage breakdown
Your monthly payment
10.209 € *
For 30 years (360 payments)
Property price:
3.000.000 €
Taxes and purchase expenses:
183.785 €
Total property cost:
3.183.785 €
Savings contributed:
600.000 €
Mortgage amount:
2.583.785 €
Total interest:
1.091.482 €
Total cost with mortgage
4.275.267 €
Principal + interest + taxes and fees
Fotocasa does not act as a financial intermediary. The information provided is for guidance only, based on publicly available market information. The credit institution will contact the potential borrower to negotiate, facilitate, and agree upon the applicable financial conditions.
Contrata luz y gas online, sin permanencia

Elige la Fibra que mejor se adapte a ti.

Please let us know about it so we can correct it.