- 4 Zi.
- 2 Badezimmer
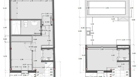
- 131 m²
- 44 m² Gelände
Einfamilien-Reihenhaus zum Verkauf in Calle Párroco Antonio Gómez Villalobos, El Cerro
Sevilla Capital
REF: 2791 Aljasol vende
� Obra nueva con piscina privada y ascensor en Sevilla. OBRAS INICIADAS, entrega 4T-2026
¿Te imaginas estrenando casa con piscina en Sevilla? Esta vivienda lo tiene TODO: diseño moderno, amplitud, ascensor y una espectacular zona exterior para disfrutar todo el año.
Se trata de una vivienda unifamiliar entre medianeras de obra nueva, distribuida en 3 plantas + ático, con la comodidad de contar con ascensor, ideal para el día a día y para todas las edades.
En la planta superior encontrarás un práctico trastero (que puede transformarse en un cuarto dormitorio) y un solárium con piscina privada, perfecto para relajarte o compartir momentos inolvidables.
Con 131 m² construidos, la casa ofrece una distribución cómoda y funcional:
✔ Luminoso salón-comedor
✔ Cocina independiente
✔ 4 dormitorios
✔ 2 baños completos
✔ 1 aseo
✔ Ascensor
Destaca por su excelente luz natural, sus calidades actuales y su alta eficiencia energética, lo que se traduce en mayor confort y ahorro en el día a día.
Ubicada en una zona tranquila pero bien comunicada, tendrás todos los servicios a tu alcance sin renunciar a la tranquilidad.
� Lo mejor de esta vivienda:
Obra nueva a estrenar
Piscina privada en solárium
Ascensor
Vivienda moderna y eficiente
Espacios amplios y muy luminosos
Zona residencial tranquila
✨ Ideal para familias o como inversión en una de las ciudades con mayor demanda.
� ¡No dejes pasar esta oportunidad! Ven a visitarla y enamórate.
� Gastos de notaría, registro y honorarios no incluidos en el precio.
Eigenschaften
Immobilientyp
ReihenhausVerfügbarkeit
Uneingeschränkt verfügbarZustand
NeuwertigAlter
Weniger als 1 JahrAufzug
NeinMöbliert
NeinEnergie
Energielabel:GEmissionen:999 kg CO₂ m² / JahrEmissionen
Energielabel:GEmissionen:999 kg CO₂ m² / Jahr
- Terrasse
- Abstellraum
- Swimming Pool
- Suite · Suite · mit Badezimmer
- Stahlverstärkte Tür
Zinsart
Geschätzte monatliche Rate
1.521 €
Dienstleistung angeboten von
Fotocasa agiert nicht als Finanzvermittler. Die bereitgestellten Informationen dienen lediglich der Orientierung und basieren auf öffentlich zugänglichen Marktinformationen. Das Kreditinstitut wird den potenziellen Kreditnehmer kontaktieren, um die anwendbaren finanziellen Bedingungen zu verhandeln, zu erleichtern und zu vereinbaren.
Hypothekenaufschlüsselung
Ihre monatliche Rate
1.521 € *
Für 30 Jahre (360 Raten)
Immobilienpreis:
440.000 €
Steuern und Kaufnebenkosten:
32.999 €
Gesamtkosten der Immobilie:
472.999 €
Eigenkapital:
88.000 €
Hypothekenbetrag:
384.999 €
Gesamtzinsen:
162.637 €
Gesamtkosten mit Hypothek
635.636 €
Kapital + Zinsen + Steuern und Kosten
Fotocasa agiert nicht als Finanzvermittler. Die bereitgestellten Informationen dienen lediglich der Orientierung und basieren auf öffentlich zugänglichen Marktinformationen. Das Kreditinstitut wird den potenziellen Kreditnehmer kontaktieren, um die anwendbaren finanziellen Bedingungen zu verhandeln, zu erleichtern und zu vereinbaren.