Contrata luz y gas online, sin permanencia

neubau
Gehört zur
Carrer de Cèsar Martinell I Brunet, 23, El Vendrell
En el corazón de El Vendrell, en una ubicación que combina vida urbana y tranquilidad, nace un proyecto residencial pensado para algo más que vivir: para sentir que, por fin, estás en casa.
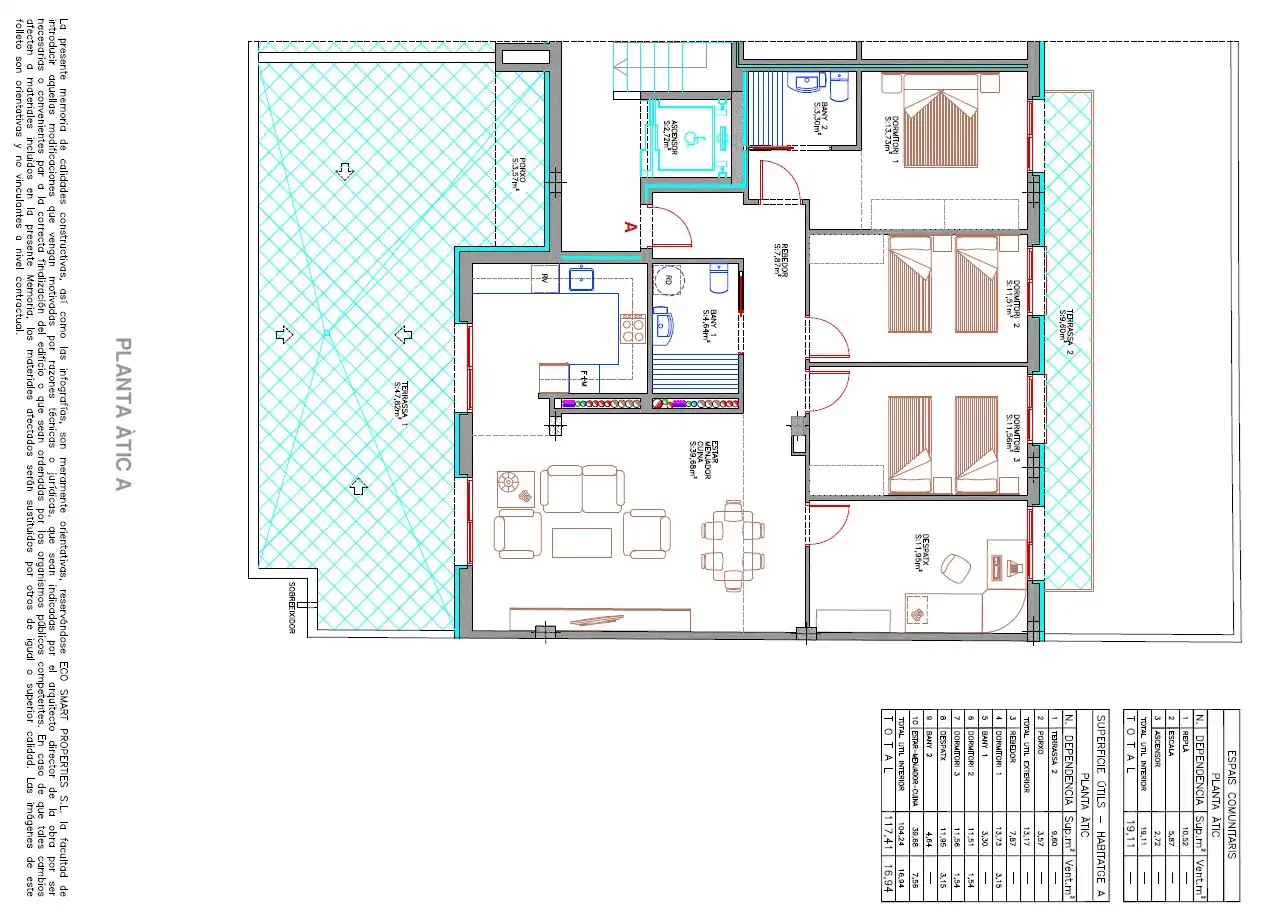
Ubicado en Carrer Cèsar Martinell i Brunet, este edificio plurifamiliar entre medianeras acoge 14 viviendas de 3 y 4 dormitorios diseñadas para ofrecer espacios reales, funcionales y adaptados al día a día de las familias actuales.
Cada vivienda ha sido concebida para maximizar la luz natural y la sensación de amplitud, con distribuciones equilibradas donde cada estancia tiene sentido. Salones amplios y acogedores, cocinas prácticas y dormitorios pensados para el descanso crean un conjunto armónico entre comodidad y funcionalidad. Las viviendas de 3 dormitorios ofrecen un equilibrio perfecto, mientras que las de 4 dormitorios permiten incorporar espacios adicionales como despacho o zona polivalente.
Uno de los grandes valores de la promoción es su apuesta por la eficiencia energética. Cada vivienda dispone de instalación individual de placas solares fotovoltaicas con 4 paneles de 590 Wp y una potencia aproximada de 2.360 Wp, junto con inversor de 2 kW, reduciendo el consumo energético y mejorando la sostenibilidad del hogar.
La climatización se resuelve mediante sistema de aire acondicionado por conductos con bomba de calor, garantizando confort térmico durante todo el año con una distribución homogénea en todas las estancias.
En cuanto a calidades, se han seleccionado materiales actuales y duraderos: carpintería exterior de aluminio con rotura de puente térmico para un óptimo aislamiento, pavimentos laminados de calidad en toda la vivienda y revestimientos porcelánicos de gran formato en baños y cocina. Los baños se entregan equipados con sanitarios de la marca Roca o similar, combinando diseño y funcionalidad. Cocinas totalmente equipadas: horno, campana, placa de inducción, frigorífico, lavavajillas, microhondas.
Todo ello en un entorno con todos los servicios a tu alcance: colegios, comercios, transporte y excelentes conexiones. Y, a pocos minutos, el mar, aportando un valor añadido a tu calidad de vida.
Un hogar donde empezar una nueva etapa, crecer y disfrutar cada día con la tranquilidad de haber tomado la decisión correcta.
📢 Las imágenes pueden incluir renders o recreaciones con carácter orientativo y no contractual, pudiendo existir variaciones respecto al proyecto final.
📢 De conformidad con el Real Decreto 515/1989 y la normativa de protección de consumidores, el precio de la vivienda es de 212.000 €. A este importe hay que añadir aproximadamente entre 25.500 € y 26.000 € en impuestos y gastos de compra (IVA 10%, AJD, notaría y registro). En total, el coste final aproximado de la compra se sitúa entre 237.500 € y 238.000 €. Importes orientativos que pueden variar según cada caso.
📢 Los honorarios de la inmobiliaria irán por cuenta de la propiedad.
📢 En cumplimiento de la Ley 11/2022, el interesado autoriza a ser contactado, incluso desde móviles, al solicitar información.
7 Gehäuse bei dieser Aktion
Zinsart
Geschätzte monatliche Rate
762 €
Dienstleistung angeboten von
Fotocasa agiert nicht als Finanzvermittler. Die bereitgestellten Informationen dienen lediglich der Orientierung und basieren auf öffentlich zugänglichen Marktinformationen. Das Kreditinstitut wird den potenziellen Kreditnehmer kontaktieren, um die anwendbaren finanziellen Bedingungen zu verhandeln, zu erleichtern und zu vereinbaren.
Hypothekenaufschlüsselung
Ihre monatliche Rate
762 € *
Für 30 Jahre (360 Raten)
Immobilienpreis:
212.000 €
Steuern und Kaufnebenkosten:
23.196 €
Gesamtkosten der Immobilie:
235.196 €
Eingebrachte Ersparnisse:
42.400 €
Hypothekenbetrag:
192.796 €
Gesamtzinsen:
81.444 €
Gesamtkosten mit Hypothek
316.640 €
Kapital + Zinsen + Steuern und Kosten
Fotocasa agiert nicht als Finanzvermittler. Die bereitgestellten Informationen dienen lediglich der Orientierung und basieren auf öffentlich zugänglichen Marktinformationen. Das Kreditinstitut wird den potenziellen Kreditnehmer kontaktieren, um die anwendbaren finanziellen Bedingungen zu verhandeln, zu erleichtern und zu vereinbaren.
Contrata luz y gas online, sin permanencia

Elige la Fibra que mejor se adapte a ti.
