- 104 m²
- 104 m² Gelände
Residential zum Verkauf in Calle Salzillo, La Raya
Murcia Capital
📍 Solar Urbano con Obra Iniciada en el Corazón de La Raya (Murcia)
¡Ahorra tiempo y trámites! Se vende solar urbano en ubicación privilegiada, justo al lado de la Iglesia, en el casco antiguo de La Raya. Una oportunidad única para construir la casa de tus sueños o una inversión segura.
Lo más destacado:
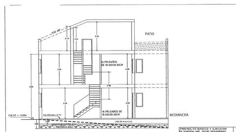
Licencia y Proyecto: Cuenta con licencia de obra y ya se ha ejecutado el inicio de mallazo. Está listo para entrar a construir hoy mismo.
Espacios Increíbles: Fachada de 4,5 metros. El proyecto permite 3 alturas, destacando una primera planta espectacular con 8 metros de altura, ideal para techos altos, vigas vistas o un diseño moderno.
Ubicación Premium: Situado en una zona tranquila y tradicional, con todos los servicios (farmacia, tiendas, transporte) a mano y excelente comunicación con Murcia capital.
No dude en preguntar le atenderemos sin compromiso. Por expreso deseo del propietario gestionamos este inmueble con carácter de EXCLUSIVA. Con ello garantizamos, a todas las partes, un servicio de mayor calidad y sin interferencias de terceros. Rogamos no molesten al propietario del inmueble ni a posibles ocupantes, inquilinos, o al vecindario sino que se dirijan directamente a nosotros para cualquier cuestión relacionada con el mismo. Impuestos y comisión de inmobiliaria no incluidos en el precio
INFORMACIÓN LEGAL Y CONDICIONES DE LA OFERTA
En cumplimiento de la normativa vigente en materia de información al consumidor, se informa expresamente que el precio de venta del inmueble anunciado no incluye los gastos e impuestos derivados de la compraventa, tales como:
• Impuesto sobre Transmisiones Patrimoniales (ITP) (3% o 7,75%)
• Gastos de notaría e inscripción en el Registro de la Propiedad.
• Honorarios de intermediación inmobiliaria: 3000 euros iva no incluido
El comprador asumirá los gastos que legalmente le correspondan. Si desea conocerlos con detalle, pregúntenos, estaremos encantados de facilitárselos sin compromiso
Las imágenes publicadas tienen carácter ilustrativo y no contractual. La información descriptiva del inmueble, se facilita a título orientativo y podrá estar sujeta a variaciones.
Las superficies indicadas son aproximadas por lo que no constituyen garantía contractual.
Asimismo, las cantidades expresadas en concepto de Impuesto sobre Bienes Inmuebles (IBI) y Cuotas de Comunidad de Propietarios, en su caso, son meramente orientativas y podrán experimentar variaciones.
La información aquí contenida no constituye oferta vinculante ni documento contractual, quedando sujeta a posibles modificaciones, errores u omisiones.
Documento informativo no contractual conforme a Ley 10/2025. mas info: (https://agenciatributaria.carm.es/ITPAJD)
Eigenschaften
Immobilientyp
Wohnimmobilie
Zinsart
Geschätzte monatliche Rate
117 €
Dienstleistung angeboten von
Fotocasa agiert nicht als Finanzvermittler. Die bereitgestellten Informationen dienen lediglich der Orientierung und basieren auf öffentlich zugänglichen Marktinformationen. Das Kreditinstitut wird den potenziellen Kreditnehmer kontaktieren, um die anwendbaren finanziellen Bedingungen zu verhandeln, zu erleichtern und zu vereinbaren.
Banken vergeben normalerweise keine Hypotheken, wenn der Betrag unter 30.000 €.
Hypothekenaufschlüsselung
Ihre monatliche Rate
117 € *
Für 30 Jahre (360 Raten)
Immobilienpreis:
32.000 €
Steuern und Kaufnebenkosten:
4.121 €
Gesamtkosten der Immobilie:
36.121 €
Eigenkapital:
6.400 €
Hypothekenbetrag:
29.721 €
Gesamtzinsen:
12.555 €
Gesamtkosten mit Hypothek
48.676 €
Kapital + Zinsen + Steuern und Kosten
Fotocasa agiert nicht als Finanzvermittler. Die bereitgestellten Informationen dienen lediglich der Orientierung und basieren auf öffentlich zugänglichen Marktinformationen. Das Kreditinstitut wird den potenziellen Kreditnehmer kontaktieren, um die anwendbaren finanziellen Bedingungen zu verhandeln, zu erleichtern und zu vereinbaren.