Contrata luz y gas online, sin permanencia
- 958 m²
Gebaude zum Verkauf in Barri Gòtic
Barcelona Capital
Oportunidad única de inversión patrimonial en el centro de Barcelona, con derecho a vuelo y proyecto de rehabilitación con licencia de ascensor concedida.
Situado en pleno triángulo de oro del centro histórico, entre Plaza Catalunya, Calle Fontanella y Vía Layetana.
Zona de altísima demanda para alquiler de media y larga estancia, así como uso profesional.
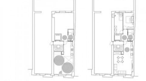
Edificio señorial del año 1900, con una superficie total construida de 933,68 m2 (según proyecto).
Composición del edificio:
Planta Baja + Altillo: Gran potencial para uso comercial, oficina o dotacional.
Planta Principal + 3 Plantas Piso: Distribución clásica, techos altos y elementos originales.
Ascensor: Proyecto y licencia incluidos para instalación inmediata, incrementando el valor de todas las unidades.
ACTIVOS INCLUIDOS EN EL PRECIO
3 Viviendas (una con régimen indefinido y otra recientemente reformada)
1 Oficina.
Planta Baja / Almacén.
Derecho a vuelo para construir 2 nuevas viviendas (remonta).
Estado jurídico:
División horizontal realizada.
2 viviendas ya vendidas a terceros.
PROYECTO Y PRESUPUESTO
Presupuesto de reforma: 240.000 € + IVA
(Incluye 4 unidades, ascensor, fachada y zonas comunes).
Ideal para inversores patrimoniales, family office o promotores que busquen rentabilidad y revalorización en una de las zonas más demandadas de la ciudad.
Contacta para ampliar información, planos y proyecto.
Eigenschaften
Immobilientyp
GebäudeZustand
RenovierungsbedürftigAlter
50 bis 70 JahreEnergie
Energielabel:GEmissionen:999 kg CO₂ m² / JahrEmissionen
Energielabel:GEmissionen:999 kg CO₂ m² / Jahr
Zinsart
Geschätzte monatliche Rate
6.124 €
Dienstleistung angeboten von
Fotocasa agiert nicht als Finanzvermittler. Die bereitgestellten Informationen dienen lediglich der Orientierung und basieren auf öffentlich zugänglichen Marktinformationen. Das Kreditinstitut wird den potenziellen Kreditnehmer kontaktieren, um die anwendbaren finanziellen Bedingungen zu verhandeln, zu erleichtern und zu vereinbaren.
Hypothekenaufschlüsselung
Ihre monatliche Rate
6.124 € *
Für 30 Jahre (360 Raten)
Immobilienpreis:
1.718.000 €
Steuern und Kaufnebenkosten:
175.585 €
Gesamtkosten der Immobilie:
1.893.585 €
Eingebrachte Ersparnisse:
343.600 €
Hypothekenbetrag:
1.549.985 €
Gesamtzinsen:
654.768 €
Gesamtkosten mit Hypothek
2.548.353 €
Kapital + Zinsen + Steuern und Kosten
Fotocasa agiert nicht als Finanzvermittler. Die bereitgestellten Informationen dienen lediglich der Orientierung und basieren auf öffentlich zugänglichen Marktinformationen. Das Kreditinstitut wird den potenziellen Kreditnehmer kontaktieren, um die anwendbaren finanziellen Bedingungen zu verhandeln, zu erleichtern und zu vereinbaren.
Elige la Fibra que mejor se adapte a ti.