Conecta tu hogar
Elige la Fibra que mejor se adapte a ti.
Viladecavalls
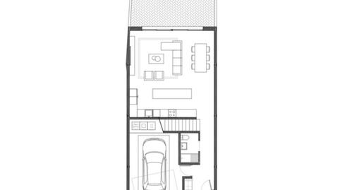
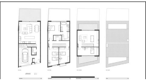
Grupo HG Sabadell comercializa esta espectacular vivienda de obra nueva en proceso de construcción, diseñada para ofrecer el máximo confort, eficiencia y estilo moderno. Con una superficie total de 160 m² útiles de vivienda, esta casa se distribuye en 3 plantas con una orientación este/oeste, lo que garantiza luz natural durante todo el día.
La planta superior cuenta con una amplia buhardilla diáfana, ideal para crear un despacho, sala de juegos o espacio polivalente adaptado a tus necesidades.
La distribución interior permite la posibilidad de 3 a 5 habitaciones dobles, proporcionando una gran versatilidad para familias que necesiten varios espacios privados. Además, la casa dispone de 3 baños modernos y funcionales.
En el exterior, disfrutarás de una impresionante terraza de 40 m², perfecta para momentos de relax o encuentros al aire libre. La propiedad incluye también un parking privado de 22 m², integrado en la vivienda.
Construida con materiales de alta calidad, incorpora parquet cerámico y un sistema de aerotermia, ofreciendo una excelente eficiencia energética, mayor sostenibilidad y un gran ahorro en consumo.
FOTOS NO REALES: Estamos emocionados de compartir con vosotros un adelanto de cómo será nuestra futura casa en Viladecavalls. Como la construcción aún está en sus primeras fases y aún no tenemos fotografías reales, hemos utilizado inteligencia artificial para crear estos renders fotorrealistas.
Ubicada en Viladecavalls, en una zona tranquila y bien comunicada, ideal para quienes buscan vivir rodeados de naturaleza sin renunciar a los servicios de proximidad.
Tipo de inmueble
Disponibilidad
Orientación
Estado
Ascensor
Amueblado
Energía
Emisiones
Tipo de interés
Cuota mensual estimada
2.036 € *
* Provisional sujeto a estudio y oferta de CaixaBank
¿Ya estás buscando financiación?
Te ayudamos a encontrar la opción que mejor se adapta a ti.
Servicio ofrecido por
Fotocasa no actúa como intermediario financiero. La información proporcionada tiene carácter orientativo, basándose en información pública en el mercado. Será la entidad de crédito quién contacte con el potencial prestatario para negociar, facilitar y pactar las condiciones financieras aplicables.
Tu cuota mensual
2.036 € *
Durante 30 años (360 cuotas)
* Provisional sujeto a estudio y oferta de CaixaBank
Precio del inmueble:
570.000 €
Impuestos y gastos:
59.347 €
Coste total del inmueble:
629.347 €
Ahorro aportado:
114.000 €
Importe de la hipoteca:
515.347 €
Intereses totales:
217.701 €
Coste total con hipoteca
847.048 €
Capital + intereses + impuestos y gastos
¿Ya estás buscando financiación?
Te ayudamos a encontrar la opción que mejor se adapta a ti.
Servicio ofrecido por
Fotocasa no actúa como intermediario financiero. La información proporcionada tiene carácter orientativo, basándose en información pública en el mercado. Será la entidad de crédito quién contacte con el potencial prestatario para negociar, facilitar y pactar las condiciones financieras aplicables.
Elige la Fibra que mejor se adapte a ti.
Contrata luz y gas online, sin permanencia
Cuéntanos qué has visto para poder corregirlo.