Conecta tu hogar
Elige la Fibra que mejor se adapte a ti.
Torrent
¡Oportunidad única en el centro de Torrent!
Se vende casa de dos alturas situada en una zona privilegiada, en pleno centro de Torrent, a solo dos minutos de la avenida Al Vedat y con vistas directas a la Plaça de Sant Jaume ya rehabilitada.
La propiedad ofrece la opción a rehabilitar la casa existente y adaptarla a tus necesidades.
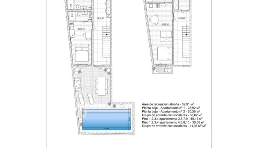
• Es posible hacer 2 apartamentos de 1 habitación en cada planta, 4 en total, sacando la rentabilidad máxima de alta demanda de alquiler por la zona, o una casa grande de dos alturas reformada a tu gusto y estilo
• La estructura está revisada por el arquitecto y se puede mantenerla y reformarla
• Según los planos urbanísticos actuales, la fachada no está protegida
• Es posible construir una piscina en el patio, hay espacio para zona chill out, barbacoa y jardín
• Proyecto consultado con arquitecto y con el Ayuntamiento
• Ya disponemos de un arquitecto que puede continuar con el proyecto, tanto si se opta por reformar la casa incluyendo ampliarla como si se elige construir desde cero
• Hay posibilidad de construir el edificio nuevo hasta 4 plantas + la planta baja
• Se adjuntan planos actuales y propuesta de proyecto futuro para facilitar la toma de decisiones.
Una oportunidad ideal para inversores o particulares que buscan desarrollar una vivienda a la medida en una ubicación inmejorable y con grandes posibilidades.
Vivienda Exterior
Superficie: 210 m²
Balcones: 1
Terraza: 1
Año construcción: 1920
Precio Venta 175000€
Dirección: Plaza San Jaime
¿Desea venir a verlo? Llámenos y concertamos tu cita. Ofrecemos un amplio horario donde puede venir a visitarlo. ☎962070404☎
↳ ESTAMOS EN LA PLAZA UNIÓN MUSICAL, 10
Este inmueble está sujeto a cambios de precio o retirada del mercado sin previo aviso.
La información de este anuncio en su totalidad (Fotos, texto o cualquier otro contenido del
mismo) se muestra a título informativo y no contractual y no es vinculante, dado que la
La información es ofrecida por terceros y puede contener errores.
El precio no incluye lo siguiente: honorarios de la agencia inmobiliaria, ITP y otros gastos de la
Compraventa (Notaria, Gestoría y registro).
En EXPERCASA tenemos más de 25 años de experiencia en el sector inmobiliario, le
ofrecemos un asesoramiento personalizado, transparente y profesional en la compra, venta o
alquiler de su inmueble. Los servicios que ponemos a su disposición incluyen:
➡ Valoración de la vivienda gratuita para aconsejar sobre su precio ideal de salida al
mercado.
➡ Elementos para promocionar la venta de la vivienda: fotografías, planos, vídeos para
visitas virtuales, etc.
➡ Publicación del anuncio de la vivienda en los principales portales nacionales e
internacionales y herramientas para mejorar su posicionamiento,
publicación del inmueble en nuestra revista mensual promoción inmobiliaria con un reparto
de más de 100.000 ejemplares gratuitos por toda Valencia.
➡ Negociación y mediación para conseguir un acuerdo que beneficie a las dos partes.
➡ Estudio Financiero gratuito “OPERFIN” que le conseguirá la mejor financiación y préstamo
hipotecario (hasta el 100%+gastos) .No trabajamos para el banco, TRABAJAMOS PARA TI.
➡ Gestión de los documentos y asesoramiento legal y fiscal.
➡ Acompañamiento durante la firma de las arras y del contrato final de compraventa ante el
notario para ayudar a verificar que todo sea correcto.
Nuestro objetivo es encontrar siempre la mejor solución adaptada a todas las necesidades de
nuestros clientes.
www.expercasa.com
Tipo de inmueble
Disponibilidad
Estado
Antigüedad
Ascensor
Amueblado
Energía
Emisiones
Tipo de interés
Cuota mensual estimada
630 € *
* Provisional sujeto a estudio y oferta de CaixaBank
¿Ya estás buscando financiación?
Te ayudamos a encontrar la opción que mejor se adapta a ti.
Servicio ofrecido por
Fotocasa no actúa como intermediario financiero. La información proporcionada tiene carácter orientativo, basándose en información pública en el mercado. Será la entidad de crédito quién contacte con el potencial prestatario para negociar, facilitar y pactar las condiciones financieras aplicables.
Tu cuota mensual
630 € *
Durante 30 años (360 cuotas)
* Provisional sujeto a estudio y oferta de CaixaBank
Precio del inmueble:
175.000 €
Impuestos y gastos:
19.403 €
Coste total del inmueble:
194.403 €
Ahorro aportado:
35.000 €
Importe de la hipoteca:
159.403 €
Intereses totales:
67.337 €
Coste total con hipoteca
261.740 €
Capital + intereses + impuestos y gastos
¿Ya estás buscando financiación?
Te ayudamos a encontrar la opción que mejor se adapta a ti.
Servicio ofrecido por
Fotocasa no actúa como intermediario financiero. La información proporcionada tiene carácter orientativo, basándose en información pública en el mercado. Será la entidad de crédito quién contacte con el potencial prestatario para negociar, facilitar y pactar las condiciones financieras aplicables.
Elige la Fibra que mejor se adapte a ti.
Contrata luz y gas online, sin permanencia
Cuéntanos qué has visto para poder corregirlo.