Calcula tu hipoteca
Compara ofertas de distintos bancos.
Terrassa
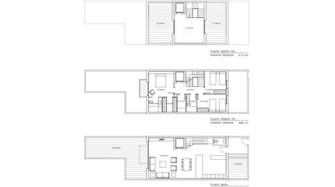
Magnífica casa de obra nueva en la calle Alcoi, tocando a la estación de FFGG de Nacions Unides.En la planta baja nos encontramos un aseo de cortesía y el estupendo salón comedor con cocina abierta de 63m2 con salida a patio de 37m2. En la planta primera localizamos las tres habitaciones, una con baño y vestidor con salida a un balcón y las otras doshabitaciones que comparten el otro baño de la planta. En la parte superior tenemos un estudio de 17,50m2 y dos terrazas, una de 21m2 y la otra de 17m2. Preinstalación de ascensor que comunica todas las plantas incluído el parking que es subterráneo. Casa muy bien orientada, con mucho sol. Anchura de la casa de 6,50m. Muy buena zona. No deje de informarse
Tipo de inmueble
Estado
Antigüedad
Consumo energía
Emisiones
Compara ofertas de distintos bancos.
Elige la Fibra que mejor se adapte a ti.
Ahorra un 30% en un servicio 5 estrellas.
Cuéntanos qué has visto para poder corregirlo.