Contrata luz y gas online, sin permanencia
- 4 habs.
- 3 baños
- 97 m²
- Bajos
Piso en venta en Pino Montano - Consolación
Sevilla Capital
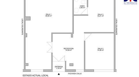
Local con posibilidad de CAMBIO DE USO para DOS VIVIENDAS de una habitación y un baño. También UNA VIVIENDA con hasta CUATRO HABITACIONES + 3 BAÑOS.
LOCALIZACION ESTRATÉGICA de la próxima lineal 3 de METRO, en construcción.
Para reformar y gestionar cambio de uso por el comprador. Requiere Proyecto y licencia.
Es posible diseñar una amplia VIVIENDA hasta CUATRO HABITACIONES + 3 BAÑOS y cocina independiente (84 m² útiles).
También tiene capacidad, por su superficie y configuración para desarrollad DOS VIVIENDAS con UNA HABITACION Y un baño cada una (42 m² útiles cada una).
SUPERFICIE CONSTRUIDA TOTAL: 97 m²t.
Los planos mostrados constituyen únicamente una orientación sobre algunas de las posibilidades de diseño, que se definiría en el Proyecto de Cambio de Uso, necesario para la tramitación de la Licencia ante la Gerencia Municipal de Urbanismo y el para la inscripción en el Registro de la Propiedad.
Las imágenes son igualmente representación artística fotorrealista de posibles organizaciones del espacio, terminaciones y amueblamiento, ya que el local se vendería como tal, ocupándose el comprador del cambio de uso con el diseño y organización de la vivienda según sus gustos y necesidades.
Características
Tipo de inmueble
PisoDisponibilidad
Sin restriccionesOrientación
SurAgua caliente
ElectricidadEstado
A reformarAntigüedad
30 a 50 añosPlanta
Bajos / Planta bajaAscensor
SíAmueblado
NoEnergía
Etiqueta de calificación energética:ExentoEmisiones
Etiqueta de calificación energética:Exento
- Aire acondicionado
- Armarios
- Parquet
- Suite - con baño
- Horno
- Lavadora
- Microondas
- Nevera
- Cocina Equipada
Tipo de interés
Cuota mensual estimada
420 €
Servicio ofrecido por
Fotocasa no actúa como intermediario financiero. La información proporcionada tiene carácter orientativo, basándose en información pública en el mercado. Será la entidad de crédito quién contacte con el potencial prestatario para negociar, facilitar y pactar las condiciones financieras aplicables.
Desglose de la hipoteca
Tu cuota mensual
420 € *
Durante 30 años (360 cuotas)
Precio del inmueble:
120.000 €
Impuestos y gastos de la compra:
10.303 €
Coste total del inmueble:
130.303 €
Ahorro aportado:
24.000 €
Importe de la hipoteca:
106.303 €
Intereses totales:
44.906 €
Coste total con hipoteca
175.209 €
Capital + intereses + impuestos y gastos
Fotocasa no actúa como intermediario financiero. La información proporcionada tiene carácter orientativo, basándose en información pública en el mercado. Será la entidad de crédito quién contacte con el potencial prestatario para negociar, facilitar y pactar las condiciones financieras aplicables.
Elige la Fibra que mejor se adapte a ti.