Conecta tu hogar
Elige la Fibra que mejor se adapte a ti.
Rubí
Te presentamos este espectacular piso de obra nueva que lo tiene todo: distribución moderna, luz natural a raudales y un balcón-terraza al sur de más de 15 m² que marca la diferencia.
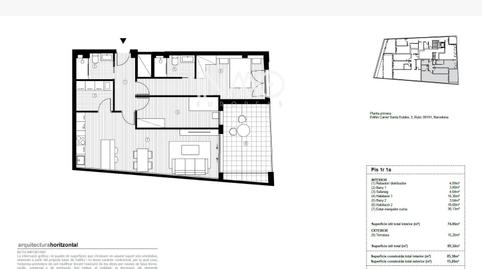
La vivienda cuenta con 74,06 m² útiles interiores, perfectamente aprovechados, y se distribuye en dos dormitorios y dos baños completos, ideal tanto para parejas como para familias o para quienes buscan espacio y comodidad sin renuncias.
El corazón de la vivienda es su amplio salón-comedor con cocina integrada, un espacio de más de 30 m², moderno y funcional, con salida directa a la terraza de 15,26 m², orientada al Sur, con vistas despejadas y perfecta para disfrutar del sol durante todo el día: desayunos al aire libre, comidas, cenas o simplemente relajarte.
La zona de noche ofrece:
Dormitorio principal amplio (16,36 m²) con excelente luminosidad.Segundo dormitorio de 10,60 m², ideal como habitación juvenil, despacho o cuarto polivalente.Dos baños completos, uno de ellos en la zona principal, con acabados actuales y funcionales.
Finca con ascensor, pensada para el confort del día a día.
➡️ Plaza de parking opcional en la misma finca, un plus imprescindible hoy en día.
Superficies:
Superficie útil interior: 74,06 m²Terraza: 15,26 m²Superficie útil total: 89,32 m²Superficie construida total: 100,64 m²
Una vivienda luminosa, eficiente y con un exterior que eleva la calidad de vida.
Si buscas obra nueva, terraza grande y orientación sur, este piso es un auténtico acierto. ☀️🏡
Tipo de inmueble
Disponibilidad
Orientación
Antigüedad
Ascensor
Amueblado
Energía
Emisiones
Tipo de interés
Cuota mensual estimada
1.057 € *
* Provisional sujeto a estudio y oferta de CaixaBank
¿Ya estás buscando financiación?
Te ayudamos a encontrar la opción que mejor se adapta a ti.
Servicio ofrecido por
Fotocasa no actúa como intermediario financiero. La información proporcionada tiene carácter orientativo, basándose en información pública en el mercado. Será la entidad de crédito quién contacte con el potencial prestatario para negociar, facilitar y pactar las condiciones financieras aplicables.
Tu cuota mensual
1.057 € *
Durante 30 años (360 cuotas)
* Provisional sujeto a estudio y oferta de CaixaBank
Precio del inmueble:
295.000 €
Impuestos y gastos:
31.571 €
Coste total del inmueble:
326.571 €
Ahorro aportado:
59.000 €
Importe de la hipoteca:
267.571 €
Intereses totales:
113.031 €
Coste total con hipoteca
439.602 €
Capital + intereses + impuestos y gastos
¿Ya estás buscando financiación?
Te ayudamos a encontrar la opción que mejor se adapta a ti.
Servicio ofrecido por
Fotocasa no actúa como intermediario financiero. La información proporcionada tiene carácter orientativo, basándose en información pública en el mercado. Será la entidad de crédito quién contacte con el potencial prestatario para negociar, facilitar y pactar las condiciones financieras aplicables.
Elige la Fibra que mejor se adapte a ti.
Contrata luz y gas online, sin permanencia
Cuéntanos qué has visto para poder corregirlo.