Calcula tu hipoteca
Compara ofertas de distintos bancos.
Roda de Ter
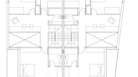
6 VIVIENDAS PAREADAS A LA VENTA. La compra del solar queda incluida en la contratacion de un proyecto llave en mano a ejecutar con la hipoteca autopromotor del comprador. Valor de la casa terminada 390.000 mas gastos. En este valor queda incluido el precio del solar, no su transmision (notario, registro e impuestos), los proyectos profesionales con sus honorarios, la licencia de obra, ICIO y declaración de obra nueva, OCT, Decenal, contrato con el contratista y con el gestor de proyecto, comisión inmobiliaria, todo gasto necesario para la obra terminada y habitable. No estaran incluidos gastos bancarios, ni impuestos del comprador.
Se pueden vender los solares sin la contratación del proyecto llave en mano (gestor-contratista), pero este se deberá ejecutar, porque las viviendas son un conjunto, según el proyecto y con los profesionales a cargo. Se podrán personalizar las distribuciones interiores pera cada conjunto d edos paredas deberá seguir un proyecto unificado, no necesariamente simétrico, para su volumetría exterior.
Tipo de inmueble
Consumo energía
Emisiones
Compara ofertas de distintos bancos.
Elige la Fibra que mejor se adapte a ti.
Ahorra un 30% en un servicio 5 estrellas.
Cuéntanos qué has visto para poder corregirlo.