Calcula tu hipoteca
Compara ofertas de distintos bancos.
Reus
OBRA NUEVA.- Próxima construcción de 4 casas adosadas en Reus con jardín privado. Una vivienda ya reservada.
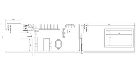
La distribución de planta baja consta de un patio de acceso con espacio para aparcamiento, gran salón comedor con cocina americana con península y salida al jardín de unos 56 m2 aproximadamente y un baño completo.
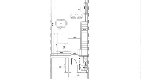
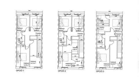
En la primera planta encontramos 4 dormitorios con un baño completo.
Otra opción para la primera planta, la cual tendría un coste extra de 4.000 €, sería 1 dormitorio suite ( con baño completo y vestidor) y dos dormitorios dobles con un cuarto de baño completo.
Opción de hacer piscina. Piscina no incluida en el precio de la vivienda.
Tipo de inmueble
Orientación
Estado
Antigüedad
Consumo energía
Emisiones
Compara ofertas de distintos bancos.
Elige la Fibra que mejor se adapte a ti.
Ahorra un 30% en un servicio 5 estrellas.
Cuéntanos qué has visto para poder corregirlo.