Conecta tu hogar
Elige la Fibra que mejor se adapte a ti.
Quart de Poblet
¡Edificio terminado con entrega en las próximas semanas!
Residencial Mistral, complejo Residencial de viviendas y locales de Obra nueva con piscina en Quart de Poblet, junto al metro.
Residencial Mistral se sitúa en una zona totalmente nueva, el barrio del Molí de Animeta de reciente creación, construido con criterios medioambientales que impactan en el entorno. Vivirás a 12 minutos del centro de Valencia en METRO.
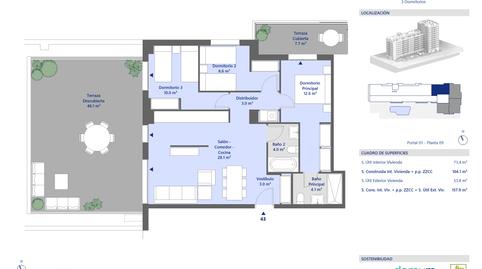
Molí Mistral está compuesto por 120 viviendas de 2, 3 y 4 dormitorios, con amplias terrazas que van desde de los 6,3 a los 15m2 de superficie y aticos con terrazas desde 30m2. Pisos desde 75 a 137 metros cuadrados. El complejo destaca por su diseño con criterios actuales de sostenibilidad y optimización de los espacios, con calificación energética AA, una excelente ubicación y grandes características. Viviendas para disfrutar de una calidad de vida inmejorable.
El complejo se divide en dos escaleras, con diversidad de orientaciones, además de una zona comunitaria, con piscina infantil y de adultos. Diseñado por el estudio ARQUEHA, esta promoción combina sostenibilidad y fantásticas calidades.
A solo 5 minutos del centro de Quart de Poblet está Residencial Molí Mistral, a 1min de la parada de metro y muy próximo a todo tipo de comercios, centros educativos y los servicios necesarios para disfrutar de la ciudad y sus beneficios.
Tu vida, tú eliges dónde vivirla.
Tipo de inmueble
Disponibilidad
Garaje
Planta
Ascensor
Amueblado
Energía
Emisiones
Tipo de interés
Cuota mensual estimada
1.566 € *
* Provisional sujeto a estudio y oferta de CaixaBank
Servicio ofrecido por
Fotocasa no actúa como intermediario financiero. La información proporcionada tiene carácter orientativo, basándose en información pública en el mercado. Será la entidad de crédito quién contacte con el potencial prestatario para negociar, facilitar y pactar las condiciones financieras aplicables.
Desglose de la hipoteca
Tu cuota mensual
1.566 € *
Durante 30 años (360 cuotas)
* Provisional sujeto a estudio y oferta de CaixaBank
Precio del inmueble:
438.000 €
Impuestos y gastos de la compra:
45.999 €
Coste total del inmueble:
483.999 €
Ahorro aportado:
87.600 €
Importe de la hipoteca:
396.399 €
Intereses totales:
167.453 €
Coste total con hipoteca
651.452 €
Capital + intereses + impuestos y gastos
Fotocasa no actúa como intermediario financiero. La información proporcionada tiene carácter orientativo, basándose en información pública en el mercado. Será la entidad de crédito quién contacte con el potencial prestatario para negociar, facilitar y pactar las condiciones financieras aplicables.
Elige la Fibra que mejor se adapte a ti.
Contrata luz y gas online, sin permanencia
Cuéntanos qué has visto para poder corregirlo.