Conecta tu hogar
Elige la Fibra que mejor se adapte a ti.
Pinto
URBAMAR, Comercializa residencial Terreros, obra nueva en el municipio de Pinto, viviendas de 1, 2, 3 dormitorios.
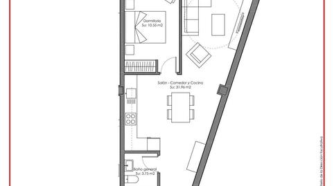
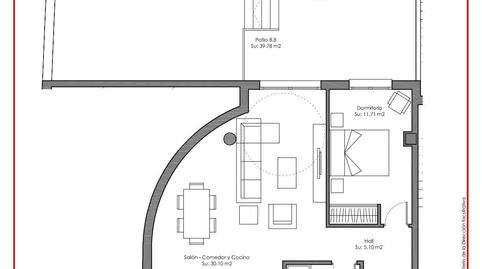
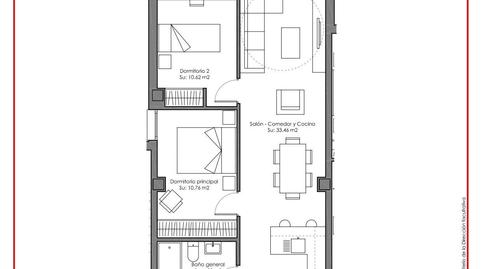
Varias tipologías de viviendas, desde un apartamento con un dormitorio y un baño de 53,48 m2, a dúplex con tres habitaciones y 2 baños de 128,80 m2, támbien dispone de viviendas con patio.
Residencial Terreros es un proyecto de obra nueva en período de inicio de obra. Fecha aproximada de entrega finales del 2.027.
Primeras calidades.
Trastero incluido en el precio, plaza de garaje opcional.
Ubicado en calle Terreros nº 3-5-7
Dispone de toda clase de servicios, comercios y ocio a su alrededor, así como centro de salud.
Con buenas comunicaciones a través del transporte publico, gracias a su proximidad a tan solo diez minutos a pie, a la estación de Cercanías Renfe de Pinto.
También por su cercanía a la carretera A-4.
Pinto es la Ciudad e la zona Sur con mayor número de zonas verdes por habitante.
No deje pasar esta oportunidad ¡¡
CONSULTENOS¡¡
*La información facilitada en este anuncio es meramente informativa y no es vinculante.
Tipo de inmueble
Disponibilidad
Agua caliente
Calefacción
Estado
Antigüedad
Planta
Ascensor
Amueblado
Energía
Emisiones
Tipo de interés
Cuota mensual estimada
853 € *
* Provisional sujeto a estudio y oferta de CaixaBank
Servicio ofrecido por
Fotocasa no actúa como intermediario financiero. La información proporcionada tiene carácter orientativo, basándose en información pública en el mercado. Será la entidad de crédito quién contacte con el potencial prestatario para negociar, facilitar y pactar las condiciones financieras aplicables.
Desglose de la hipoteca
Tu cuota mensual
853 € *
Durante 30 años (360 cuotas)
* Provisional sujeto a estudio y oferta de CaixaBank
Precio del inmueble:
248.500 €
Impuestos y gastos de la compra:
16.981 €
Coste total del inmueble:
265.481 €
Ahorro aportado:
49.700 €
Importe de la hipoteca:
215.781 €
Intereses totales:
91.153 €
Coste total con hipoteca
356.634 €
Capital + intereses + impuestos y gastos
Fotocasa no actúa como intermediario financiero. La información proporcionada tiene carácter orientativo, basándose en información pública en el mercado. Será la entidad de crédito quién contacte con el potencial prestatario para negociar, facilitar y pactar las condiciones financieras aplicables.
Elige la Fibra que mejor se adapte a ti.
Contrata luz y gas online, sin permanencia
Cuéntanos qué has visto para poder corregirlo.