Contrata luz y gas online, sin permanencia
- 3 habs.
- 3 baños
- 120 m²
- 106 m² terreno
Casa adosada en venta en Mascaraque
Mascaraque
Obra nueva en Mascaraque, Toledo, con acceso directo por la Autovía de los Viñedos, salida 19.
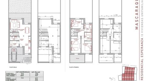
Moderna vivienda de 120 m² construidos en dos plantas, con una distribución cómoda y muy funcional. En planta baja dispone de salón–comedor luminoso, cocina abierta con posibilidad de cerrarla, aseo, lavadero y garaje privado con acceso directo.
En la planta primera se encuentran 3 dormitorios amplios, 2 baños completos y una terraza. El dormitorio principal y el segundo dormitorio destacan por su gran tamaño.
La casa cuenta además con patio delantero y patio trasero ideal para disfrutar al aire libre.
Una vivienda moderna, práctica y perfecta para familias que buscan comodidad y espacio exterior.
La Vivienda Tipo B combina funcionalidad, comodidad y diseño actual. Sus espacios están perfectamente proporcionados, ofreciendo una planta baja abierta y práctica y una planta primera con dormitorios amplios y dos baños completos. Los patios delantero y trasero complementan la vivienda con espacios exteriores privados, ideales para disfrutar al aire libre.
Con 120,70 m² construidos y 96,15 m² útiles, se distribuye en dos plantas, cuenta con 3 dormitorios, 2 baños completos, aseo, terraza en planta primera y zonas exteriores privadas.
Planta Baja – Zona de día funcional y luminosa, la planta baja ha sido diseñada para maximizar el confort y la circulación.
* Salón–Comedor (22,35 m²)
Espacio amplio y cuadrado, ideal para crear dos ambientes diferenciados. Se abre al patio trasero, lo que aporta luz natural durante todo el día.
* Cocina independiente y abierta (9,25 m²)
Cocina cómoda y muy aprovechada, con encimera en L y ventana al patio delantero. Perfecta para cocinar a diario.
* Aseo (3,05 m²)
Ubicado junto al salón, ideal para visitas.
* Lavadero (4,00 m²)
Espacio práctico y separado para lavadora, secadora y almacenamiento.
* Vestíbulo (3,85 m²)
Punto central de distribución, da acceso a cocina, aseo, salón y escalera.
* Garaje privado (12,20 m² útiles)
Acceso directo a la vivienda. Perfecto para coche compacto, motos o uso mixto de almacenaje.
Planta Primera – Zona de descanso con terraza
La planta superior alberga tres dormitorios bien proporcionados y dos baños completos.
* Dormitorio Principal (12,40 m²)
Habitación luminosa y equilibrada, con espacio para cama grande y mobiliario adicional.
* Dormitorio 2 (13,95 m²)
Dormitorio amplio, ideal para niño/a, adolescente o despacho.
* Dormitorio 3 (9,55 m²)
Perfecto como habitación infantil, despacho o dormitorio auxiliar.
* Baño 1 (5,00 m²)
Baño completo situado junto al dormitorio principal.
* Baño 2 (4,95 m²)
Da servicio a dormitorios 2 y 3. Baño espacioso con todas las comodidades.
* Distribuidor–Escalera (7,65 m²)
Zona amplia y cómoda, aporta desahogo a la planta.
* Terraza
Según el plano hay terraza en planta primera, muy útil como espacio exterior privado adicional.
Zonas exteriores - pueden variar según la parcela
Patio delantero (10,45 m²): perfecto para acceso, jardinería ligera o decoración.
Patio trasero (23,75 m²): ideal para comedor exterior, barbacoa o zona chill-out familiar.
Características
Tipo de inmueble
Casa adosadaDisponibilidad
Sin restriccionesOrientación
OesteEstado
Casi nuevoGaraje
PrivadoAscensor
NoAmueblado
NoEnergía
Etiqueta de calificación energética:GEmisiones:999 kg CO₂ m² / añoEmisiones
Etiqueta de calificación energética:GEmisiones:999 kg CO₂ m² / año
- Aire acondicionado
- Armarios
- Calefacción
- Jardín Privado
- Terraza
- Trastero
Tipo de interés
Cuota mensual estimada
430 €
Servicio ofrecido por
Fotocasa no actúa como intermediario financiero. La información proporcionada tiene carácter orientativo, basándose en información pública en el mercado. Será la entidad de crédito quién contacte con el potencial prestatario para negociar, facilitar y pactar las condiciones financieras aplicables.
Desglose de la hipoteca
Tu cuota mensual
430 € *
Durante 30 años (360 cuotas)
Precio del inmueble:
120.000 €
Impuestos y gastos de la compra:
12.703 €
Coste total del inmueble:
132.703 €
Ahorro aportado:
24.000 €
Importe de la hipoteca:
108.703 €
Intereses totales:
45.920 €
Coste total con hipoteca
178.623 €
Capital + intereses + impuestos y gastos
Fotocasa no actúa como intermediario financiero. La información proporcionada tiene carácter orientativo, basándose en información pública en el mercado. Será la entidad de crédito quién contacte con el potencial prestatario para negociar, facilitar y pactar las condiciones financieras aplicables.
Elige la Fibra que mejor se adapte a ti.