Calcula tu hipoteca
Compara ofertas de distintos bancos.
Málaga Capital
Gilmar Consulting Inmobiliario vende este fantastico proyecto de desarrollo inmobiliario para la construcción de un edificio residencial de Planta Baja + 4 alturas ubicado en una calle tranquila del entorno del Camino de Suárez, una zona plenamente consolidada, con todos los servicios básicos a escasos metros: centros de salud, farmacias, comercios, colegios y transporte público. Un enclave ideal tanto para residencia habitual como para inversión.
El proyecto se desarrolla sobre una parcela de 245 metros cuadrados, actualmente ocupada por una edificación de dos plantas, y contempla la construcción de un total de 14 viviendas de distintas tipologías, con una superficie total construida de aproximadamente 1.223 metros cuadrados.
Actualmente, el estado jurídico y técnico del proyecto se encuentra en fase de visado, paso previo a la solicitud de la licencia de obras, lo que permite una rápida puesta en marcha de la construcción.
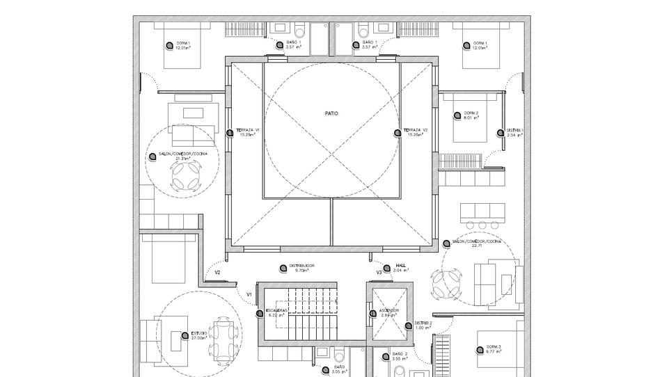
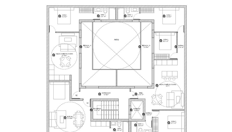
Distribución del Edificio
Planta Baja
Unidad 1: Vivienda de 3 dormitorios, 2 baños y patio. Superficie aproximada: 110,40 m².
Unidad 2: Vivienda de 3 dormitorios y 2 baños. Superficie aproximada: 107,25 m².
Planta Primera
Unidad 3: Estudio con balcón. Superficie: 39,03 m².
Unidad 4: Apartamento de 1 dormitorio con balcón. Superficie: 61,79 m².
Unidad 5: Vivienda de 3 dormitorios, 2 baños y balcón. Superficie: 96,17 m².
Planta Segunda
Unidad 6: Estudio con balcón. Superficie: 39,03 m².
Unidad 7: Apartamento de 1 dormitorio con balcón. Superficie: 47,31 m².
Unidad 8: Vivienda de 3 dormitorios, 2 baños y balcón. Superficie: 84,39 m².
Planta Tercera (idéntica a la segunda)
Unidad 9: Estudio con balcón. Superficie: 39,03 m².
Unidad 10: Apartamento de 1 dormitorio con balcón. Superficie: 47,31 m².
Unidad 11: Vivienda de 3 dormitorios, 2 baños y balcón. Superficie: 84,39 m².
Planta Cuarta + Cubierta
Unidad 12: Estudio con balcón y terraza de uso exclusivo. Vivienda: 39,03 m², terraza: 49,22 m².
Unidad 13: Apartamento de 1 dormitorio con balcón y terraza privada. Vivienda: 47,31 m², terraza: 42,67 m².
Unidad 14: Vivienda de 3 dormitorios, 2 baños, balcón y amplia terraza privada. Vivienda: 84,39 m², terraza: 79,38 m².
Atractivo e Inversión. El proyecto destaca por su excelente aprovechamiento de la parcela y la variedad de tipologías residenciales, desde estudios hasta amplias viviendas familiares de tres dormitorios, muchas de ellas con balcones o terrazas privadas. Su ubicación estratégica, la tranquilidad del entorno y la alta demanda de viviendas con espacios exteriores hacen de este desarrollo una oportunidad de inversión de alta rentabilidad, tanto para venta individual como para explotación en régimen de alquiler.
GILMAR es una reconocida empresa inmobiliaria que lleva desde 1983 ayudando a sus clientes a encontrar la casa de sus sueños. Con una amplia experiencia en el mercado inmobiliario, GILMAR se ha ganado la confianza de sus clientes gracias a su profesionalidad y excelencia en el servicio. Si está interesado en obtener más información sobre esta propiedad, no dude en ponerse en contacto con nuestro equipo en la oficina de Málaga, situada en Calle Cortina del Muelle 13, o llamando al 951 23 33 33. Estaremos encantados de atenderle.
Tipo de inmueble
Orientación
Estado
Antigüedad
Amueblado
Consumo energía
Emisiones
Compara ofertas de distintos bancos.
Elige la Fibra que mejor se adapte a ti.
Ahorra un 30% en un servicio 5 estrellas.
Cuéntanos qué has visto para poder corregirlo.