Contrata luz y gas online, sin permanencia
- 5 habs.
- 4 baños
- 365 m²
Casa adosada en venta en Calle Julian Hernandez, Conde Orgaz - Piovera
Madrid Capital
Chalet exclusivo con ascensor y piscina privada en Conde de Orgaz Arturo Soria
Descubre este chalet adosado de esquina en una de las zonas más prestigiosas de Madrid. Una vivienda única por su amplitud, luminosidad y ubicación, ideal para familias que buscan calidad de vida, privacidad y todos los servicios cerca.
Distribución perfecta en 4 plantas con ascensor:
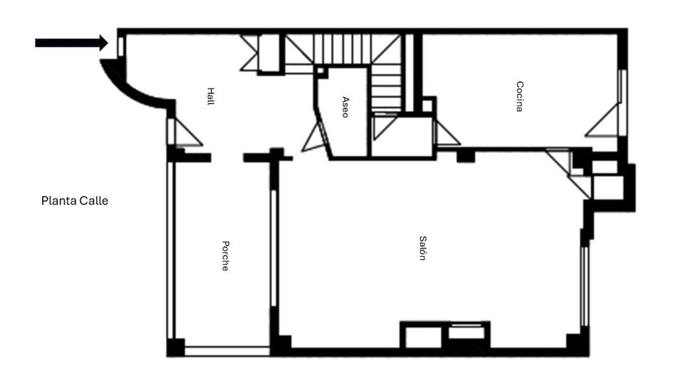
Planta principal: elegante porche de entrada, amplio salón-comedor con salida directa al jardín, cocina independiente totalmente equipada y aseo de cortesía. Jardín con piscina privada y zona de descanso.
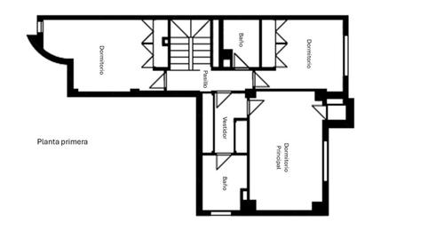
Primera planta: dos dormitorios con armarios empotrados y baño completo, además del dormitorio principal en suite con ba?o incorporado y amplios ventanales.
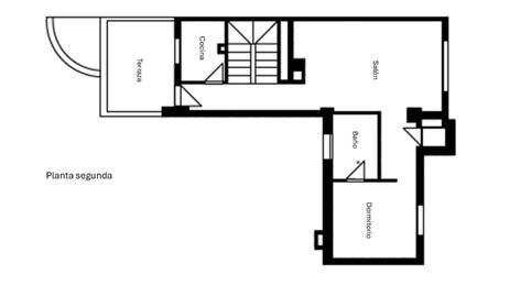
Segunda planta: espacio tipo apartamento independiente, con salón, cocina integrada, dormitorio, baño completo y terraza privada con vistas despejadas, si prefieres esta planta se puede transformar fácilmente un tu gran suite con vestidor, baño, despacho y terraza.
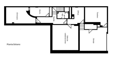
Planta sótano: dormitorio de servicio con baño, dos estancias polivalentes (gimnasio, despacho, sala de juegos...), office, trastero y garaje privado.
Detalles que marcan la diferencia:
Ascensor privado en todas las plantas
Montacargas de platos
Gran luminosidad natural en todas las estancias
Espacios amplios, funcionales y con múltiples opciones de personalización
Ubicación privilegiada:Situado en el Corazón de Conde de Orgaz Arturo Soria, una de las zonas residenciales más demandadas de Madrid.A un paso de colegios internacionales, hospitales, supermercados, zonas verdes y el Centro Comercial Arturo Soria Plaza.Excelente comunicación con metro, varias líneas de autobús y f?cil acceso a M-30, M-40, M-11, A1 y A2.
Una oportunidad única para vivir en una de las mejores áreas de Madrid, perfecta para familias grandes o como inversión de alta rentabilidad.Ven a visitarla y déjate enamorar por su encanto, su luz y su exclusividad!Algunas de las fotografías don infografías creadas por la IA
Características
Tipo de inmueble
Casa adosadaDisponibilidad
Sin restriccionesCalefacción
Gas naturalEstado
A reformarAntigüedad
30 a 50 añosGaraje
PrivadoAscensor
NoAmueblado
NoEnergía
Etiqueta de calificación energética:GEmisiones:999 kg CO₂ m² / añoEmisiones
Etiqueta de calificación energética:GEmisiones:999 kg CO₂ m² / año
- Aire acondicionado
- Armarios
- Terraza
- Trastero
- Piscina
- Gimnasio
- Lavadero
Tipo de interés
Cuota mensual estimada
6.641 €
Servicio ofrecido por
Fotocasa no actúa como intermediario financiero. La información proporcionada tiene carácter orientativo, basándose en información pública en el mercado. Será la entidad de crédito quién contacte con el potencial prestatario para negociar, facilitar y pactar las condiciones financieras aplicables.
Desglose de la hipoteca
Tu cuota mensual
6.641 € *
Durante 30 años (360 cuotas)
Precio del inmueble:
1.950.000 €
Impuestos y gastos de la compra:
120.785 €
Coste total del inmueble:
2.070.785 €
Ahorro aportado:
390.000 €
Importe de la hipoteca:
1.680.785 €
Intereses totales:
710.023 €
Coste total con hipoteca
2.780.808 €
Capital + intereses + impuestos y gastos
Fotocasa no actúa como intermediario financiero. La información proporcionada tiene carácter orientativo, basándose en información pública en el mercado. Será la entidad de crédito quién contacte con el potencial prestatario para negociar, facilitar y pactar las condiciones financieras aplicables.
Elige la Fibra que mejor se adapte a ti.