Conecta tu hogar
Elige la Fibra que mejor se adapte a ti.





Catarroja
Se vende EDIFICIO de. 950m2 con Licencia Residencial ya concedida. Cerca de todos los servicios y la avenida Ramón y Cajal y encuentra a tan solo 500m caminando del ayuntamiento. Construido en 2005, es de clasificación urbana con uso de oficinas, con cambio de uso a residencial, ofreciendo una excelente oportunidad de inversión en una de las zonas con mayor proyección.
El edificio destaca por su fachada con 12 amplios ventanales de cristal, que aportan gran luminosidad natural a todas las plantas. Gracias a sus metros y distribución, hace que sea compatible con diferentes proyectos.
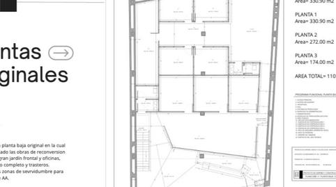
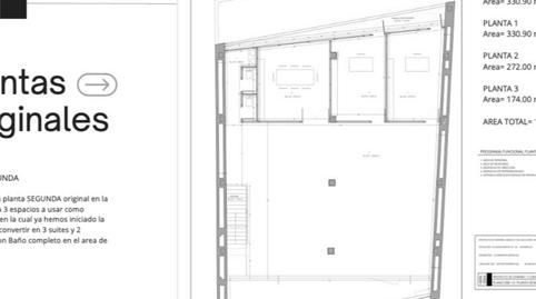
. -Distribución:
Planta baja: 331 m²
Primera planta: 239 m²
Segunda planta: 234 m²
Tercera planta: 196 m² (incluye terrazas de 90 m²)
Altura libre interior en cada planta 2,60 m
. -Proyectos compatibles:
10 apartamentos (3 1 por planta)
8 pisos (2 por planta)
1 local comercial y 3 viviendas de lujo (1 por planta)
5 plazas de garaje incluidas en el precio muy cerca del edificio
No dispone de ascensor pero si existe hueco para su instalación
Excelente oportunidad de inversión con alta rentabilidad potencial
Tipo de inmueble
Disponibilidad
Estado
Antigüedad
Ascensor
Amueblado
Energía
Emisiones
Tipo de interés
Cuota mensual estimada
2.766 € *
* Provisional sujeto a estudio y oferta de CaixaBank
Servicio ofrecido por
Fotocasa no actúa como intermediario financiero. La información proporcionada tiene carácter orientativo, basándose en información pública en el mercado. Será la entidad de crédito quién contacte con el potencial prestatario para negociar, facilitar y pactar las condiciones financieras aplicables.
Desglose de la hipoteca
Tu cuota mensual
2.766 € *
Durante 30 años (360 cuotas)
* Provisional sujeto a estudio y oferta de CaixaBank
Precio del inmueble:
775.000 €
Impuestos y gastos de la compra:
79.997 €
Coste total del inmueble:
854.997 €
Ahorro aportado:
155.000 €
Importe de la hipoteca:
699.997 €
Intereses totales:
295.703 €
Coste total con hipoteca
1.150.700 €
Capital + intereses + impuestos y gastos
Fotocasa no actúa como intermediario financiero. La información proporcionada tiene carácter orientativo, basándose en información pública en el mercado. Será la entidad de crédito quién contacte con el potencial prestatario para negociar, facilitar y pactar las condiciones financieras aplicables.
Elige la Fibra que mejor se adapte a ti.
Contrata luz y gas online, sin permanencia
En Mapfre tu seguro desde 120€/año
Cuéntanos qué has visto para poder corregirlo.