Conecta tu hogar
Elige la Fibra que mejor se adapte a ti.
Cartagena
Es una oportunidad única para realizar una nueva construcción en la que se pueden rehabilitar 4 viviendas, ya que la distribución lo permite., a la vez que es una gran casa para actualizarla y poder disfrutarla una familia grande.....Es toda exterior y muy luminosa.
Esta ubicada en la Calle principal de la Palma, rodeada de todos los servicios, y con fácil acceso a la autovía.
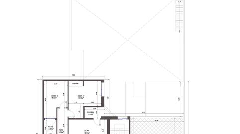
Esta Gran construcción se ubica sobre un solar de una superficie de trescientos noventa metros cuadrados, dentro de su cabida y linderos existe una edificación que comprende una casa ,construida que tiene una superficie de cuatrocientos setenta metros construida, compuesta por dos cuerpos de edificación en planta baja y alta y están separados entre si por un patio central que tiene una superficie de cien metros cuadrados.
La planta baja tiene una superficie total construida de doscientos noventa metros cuadrados y esta formada por dos cuerpos de obra , el cuerpo delantero es el principal y está destinado a vivienda, distribuida en varias habitaciones y servicios y a comercio. El cuerpo trasero con acceso desde el patio central está destinado a almacén. La planta alta está formada por dos cuerpos de obra. el cuerpo delantero tiene su acceso desde la planta baja mediante escalera interior y está destinada a vivienda, distribuida en varias habitaciones y servicios .
Es una oportunidad única para realizar una nueva construcción en la que se pueden rehabilitar 4 viviendas, ya que la distribución lo permite., a la vez que es una gran casa para actualizarla y poder disfrutarla una familia grande.....Es toda exterior y muy luminosa.
Esta ubicada en la Calle principal de la Palma, rodeada de todos los servicios, y con fácil acceso a la autovía.
No lo dudes más y solicítanos una visita, estaremos encantados de mostrártela.
Esta vivienda se comercializa en Régimen de exclusiva, por lo que ofrecemos la vivienda con total transparencia y un servicio de máxima calidad, por expreso mandato, el propietario no prefiere no ser molestado, si desea ampliar cualquier información acerca del inmueble o realizar una visita no dude en llamarnos, estaremos encantados de atenderle.
Los precios y ofertas presentados en nuestro sitio web no son vinculantes y están sujetos a cambios. Gastos de compra-venta y honorarios agencia no incluidos en el precio de venta.
Santa Florentina 21 Agencia Inmobiliaria
Compromiso & Transparencia.
Tipo de inmueble
Disponibilidad
Estado
Antigüedad
Planta
Ascensor
Amueblado
Energía
Emisiones
Tipo de interés
Cuota mensual estimada
614 € *
* Provisional sujeto a estudio y oferta de CaixaBank
¿Ya estás buscando financiación?
Te ayudamos a encontrar la opción que mejor se adapta a ti.
Servicio ofrecido por
Fotocasa no actúa como intermediario financiero. La información proporcionada tiene carácter orientativo, basándose en información pública en el mercado. Será la entidad de crédito quién contacte con el potencial prestatario para negociar, facilitar y pactar las condiciones financieras aplicables.
Tu cuota mensual
614 € *
Durante 30 años (360 cuotas)
* Provisional sujeto a estudio y oferta de CaixaBank
Precio del inmueble:
175.000 €
Impuestos y gastos:
15.466 €
Coste total del inmueble:
190.466 €
Ahorro aportado:
35.000 €
Importe de la hipoteca:
155.466 €
Intereses totales:
65.674 €
Coste total con hipoteca
256.140 €
Capital + intereses + impuestos y gastos
¿Ya estás buscando financiación?
Te ayudamos a encontrar la opción que mejor se adapta a ti.
Servicio ofrecido por
Fotocasa no actúa como intermediario financiero. La información proporcionada tiene carácter orientativo, basándose en información pública en el mercado. Será la entidad de crédito quién contacte con el potencial prestatario para negociar, facilitar y pactar las condiciones financieras aplicables.
Elige la Fibra que mejor se adapte a ti.
Contrata luz y gas online, sin permanencia
Cuéntanos qué has visto para poder corregirlo.