Calcula tu hipoteca
Compara ofertas de distintos bancos.
A Coruña Capital
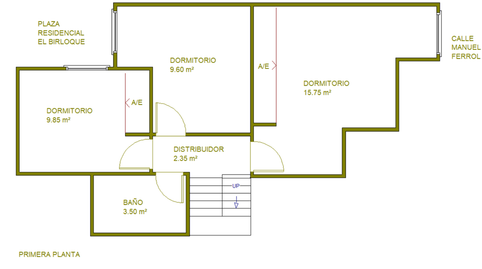
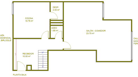
Entrando en nuestra página web podrás ver la ficha técnica con todos los datos del inmueble y un plano de distribución con los metros cuadrados de cada estancia. También podrás almacenar una búsqueda y recibirás cada semana en tu email los inmuebles que se adapten a tus criterios.
RESIDENCIAL EL BIRLOQUE (ZONA MARTINETE).- DUPLEX. Planta baja: Recibidor amplio con armario empotrado, cocina office con despensa, salón - comedor y aseo. Planta Primera: tres dormitorios y baño completo con ducha. Plaza de garaje y trastero en sótano -1 del edificio. Se trata de una segunda planta, ya que el primero realmente es planta baja, y no dispone de ascensor, aunque hay hueco para su instalación. Se vende parcialmente amueblado. Armarios empotrados. Todo exterior con vistas despejadas a la calle Manuel Ferrol y a la plaza privativa. Muy soleado y luminoso. Dispone de ventanas con cristal doble de aluminio y cierre oscilo batiente en toda la vivienda, y como se puede observar en las fotografías no tiene zonas abuhardilladas, haciendo que toda su superficie sea de utilidad. Suelos de parqué, puertas en sapelly, puerta de entrada con cierre de seguridad. El baño principal se reformó en el año dos mil diecinueve. Se abonan veinticinco euros de comunidad por la vivienda y en esos gastos entra también el mantenimiento de la plaza privada de la que consta la urbanización (jardines, limpieza, etc). La plaza de garaje y el trastero veinticinco euros trimestralmente.
Nuestros asesores inmobiliarios están especializados por zonas para poder darle el mejor servicio y que el inmueble que usted compre esté a un precio de mercado adecuado. Además verificamos todos los datos de los inmuebles (metros, antigüedad, calidades, etc.) y con cada visita le entregamos una ficha (con todas las características, un plano, información de la zona y los gastos adicionales al precio de compra). Horario de 10.00 a 14.00 y de 16.00 a 20.00 de lunes a viernes.
Este anuncio no es vinculante (puede contener errores). Se muestra a título informativo y no contractual.
Tipo de inmueble
Orientación
Agua caliente
Estado
Planta
Parking
Amueblado
Consumo energía
Emisiones
Compara ofertas de distintos bancos.
Elige la Fibra que mejor se adapte a ti.
Ahorra un 30% en un servicio 5 estrellas.
Cuéntanos qué has visto para poder corregirlo.