Seguro de impago de propietarios
Garantizamos el cobro de la renta de alquiler.
Madrid Capital
¡ALTA DE SUMINISTROS GRATIS!
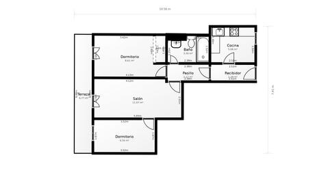
Excelente vivienda de dos dormitorios y un baño. Se encuentra en la planta 3 de un edificio residencial. No dispone de ascensor. Situado en San Diego en el distrito de Puente de Vallecas.
La vivienda se distribuye en dos dormitorios, armarios empotrados, salón-comedor con acceso a terraza, cocina independiente y un baño. Cuenta con cocina amueblada y equipada con muebles altos y bajos, vitrocerámica, horno y campana extractora.
Se encuentra ubicado en San Diego, Puente de Vallecas. Cuenta con fácil acceso a través de las principales carreteras y buenas comunicaciones por transporte público. La parada de metro más cercana es Portazgo y se encuentra a menos de 20 minutos andando. La parada de autobús más cercana es Carlos Martin Alvarez-San Diego y se encuentra a menos de 5 minutos andando. La parada de taxi más cercana se encuentra a menos de 20 minutos andando.
En su entorno existen viviendas plurifamiliares de similares características. La zona cuenta con todo tipo de servicios básicos, el centro de salud más cercano se encuentra a 250 metros, existen 6 farmacias a menos de 300 metros, existen 2 colegios a menos de 300 metros. Además, a menos de 500 metros también puedes encontrar 3 supermercados, 3 bancos, una oficina de correos.
La zona cuenta con una amplia oferta de entretenimiento con un teatro, 10 parques, bares, restaurantes y comercios a pocos minutos de la vivienda.
En cuanto al transporte privado, la zona dispone de parkings privados y aparcamiento en la calle. La vivienda tiene un fácil acceso por carretera y está bien comunicado a través de la M-40, Avenida de Entrevias y la Avenida de Pablo Neruda.
Requisitos:
- 1 mes de fianza.
- 1 mes de depósito.
- Seguro del hogar a la firma del contrato.
- Antigüedad laboral ininterrumpida superior a un año.
- No aparecer en ningún fichero de morosidad.
- Disponer de una ratio de solvencia* de entre un 30% y 35% dependiendo de la zona.
*Solo se tendrán en cuenta ingresos demostrables para acreditar el ratio.
La vivienda se comercializa mediante colaboradores que no cobran comisión de agencia, ofreciéndote un proceso directo, claro y sin costes añadidos.
Tipo de inmueble
Disponibilidad
Tipo de alquiler
Estado
Antigüedad
Planta
Ascensor
Amueblado
Energía
Emisiones
Mascotas
Garantizamos el cobro de la renta de alquiler.
Elige la Fibra que mejor se adapte a ti.
Contrata luz y gas online, sin permanencia
Cuéntanos qué has visto para poder corregirlo.