Non-payment insurance
We guarantee the collection of rental payments
Terrassa
"ESTUPENDA VIVIENDA DESTINADA A ALQUILER TEMPORAL Y TRANSITORIO
Excelente vivienda de tres dormitorios y un baño. Se encuentra en la planta 2 de un edificio residencial. No dispone de ascensor. Situado en el municipio de Terrassa.
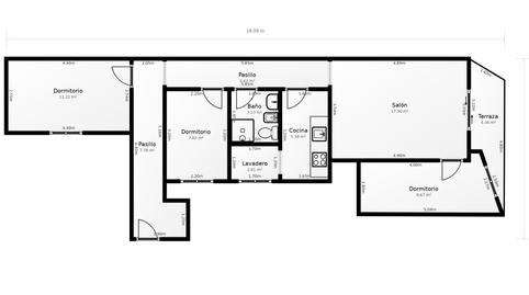
La vivienda se distribuye en tres dormitorios, salón-comedor, cocina independiente y un baño. Cuenta con cocina amueblada y equipada con muebles altos y bajos, vitrocerámica, horno, campana extractora y nevera. Además, cuenta con terraza y armarios empotrados. Dispone de calefacción Individual.
Se encuentra ubicado en Terrassa. Cuenta con fácil acceso a través de las principales carreteras y buenas comunicaciones por transporte público. La parada de autobús más cercana es CAP Nord y se encuentra a menos de 5 minutos andando.
En su entorno existen viviendas plurifamiliares de similares características. La zona cuenta con todo tipo de servicios básicos, el centro de salud más cercano se encuentra a 80 metros, existen 3 farmacias a menos de 300 metros. Además, a menos de 500 metros también puedes encontrar 3 supermercados, 3 bancos.
La zona cuenta con una amplia oferta de entretenimiento con una biblioteca, 3 parques, bares, restaurantes y comercios a pocos minutos de la vivienda.
En cuanto al transporte privado, la zona dispone de parkings privados y aparcamiento en la calle. La vivienda tiene un fácil acceso por carretera y está bien comunicado a través de la Quart Cinturo, Carretera de Terrassa y la Avinguda del Valles.
Precio ajustado al período de la estancia, que dependerá de la necesidad temporal del arrendatario. Descuentos en el precio del alquiler para estancia más largas:
Precio para contratos de 9 a 12 meses: 990€
Precio para contratos de 13 a 15 meses: 945€
Precio para contratos de 16 a 18 meses: 900€
Condiciones de alquiler:
- Todos los gastos incluidos, salvo los gastos de suministros, que corresponderán al inquilino (importe en función del número de habitaciones, a regularizar al final del contrato)
- Alquiler por temporada a partir de 9 meses y hasta 24 meses, dependiendo de la necesidad temporal del arrendatario
- 2 meses de fianza
- Seguro del hogar a la firma del contrato
Requisitos:
- Declaración responsable por la que el inquilino expone el motivo o necesidad de temporalidad, es decir, la razón por la cual necesita temporalmente una vivienda, el tiempo por el que la necesita y su domicilio habitual y permanente. El arrendatario destinará la finca exclusivamente temporal de alojamiento y la finca no constituirá en ningún caso la vivienda habitual ni permanente del arrendatario ni de ninguno de sus ocupantes, sino que su arrendamiento será temporal por los motivos de temporalidad anteriormente referidos.
- Antigüedad laboral ininterrumpida superior a un año
- No aparecer en ningún fichero de morosidad
- Disponer de una ratio de solvencia* de un 30%
*Solo se tendrán en cuenta ingresos demostrables para acreditar el ratio"
Typology
Status
Antiquity
Floor
Pets allowed
Energy consumption
Emissions
We guarantee the collection of rental payments
Choose the Fiber that best suits you.
Save 30% on a 5-star service.
Please let us know about it so we can correct it.