Contrata luz y gas online, sin permanencia

Madrid Capital
¡ALTA DE SUMINISTROS GRATIS!
Excelente vivienda de tres dormitorios y un baño. Se encuentra en la planta 3 de un edificio residencial. No dispone de ascensor. Situado en Villaverde Alto en el distrito de Villaverde.
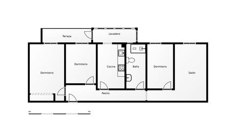
La vivienda se distribuye en tres dormitorios, armarios empotrados, salón-comedor con acceso a terraza, cocina independiente y un baño. Cuenta con cocina amueblada y equipada con muebles altos y bajos, vitrocerámica, horno y campana extractora.
Se encuentra ubicado en Villaverde Alto, Villaverde (Suroeste de Madrid). Cuenta con fácil acceso a través de las principales carreteras y buenas comunicaciones por transporte público. La parada de metro más cercana es Villaverde Alto y se encuentra a menos de 10 minutos andando. La parada de autobús más cercana es Astillero y se encuentra a menos de 5 minutos andando. La parada de taxi más cercana se encuentra a menos de 10 minutos andando.
En su entorno existen viviendas plurifamiliares de similares características. La zona cuenta con todo tipo de servicios básicos, el centro de salud más cercano se encuentra a 140 metros, existen 3 farmacias a menos de 300 metros, existen 3 colegios a menos de 300 metros. Además, a menos de 500 metros también puedes encontrar 4 supermercados, 4 bancos, una oficina de correos.
La zona cuenta con una amplia oferta de entretenimiento con 8 parques, bares, restaurantes y comercios a pocos minutos de la vivienda.
En cuanto al transporte privado, la zona dispone de parkings privados y aparcamiento en la calle. La vivienda tiene un fácil acceso por carretera y está bien comunicado a través de la M-45, Avenida de Andalucia y la Paseo de los Ferroviarios.
Requisitos:
- 1 mes de fianza.
- 1 mes de depósito.
- Seguro del hogar a la firma del contrato.
- Antigüedad laboral ininterrumpida superior a un año.
- No aparecer en ningún fichero de morosidad.
- Disponer de una ratio de solvencia* de entre un 30% y 35% dependiendo de la zona.
*Solo se tendrán en cuenta ingresos demostrables para acreditar el ratio.
La vivienda se comercializa mediante colaboradores que no cobran comisión de agencia, ofreciéndote un proceso directo, claro y sin costes añadidos.
Property type
Availability
Rental type
Condition
Age
Floor
Lift
Furnished
Energy
Emissions
Pets
Contrata luz y gas online, sin permanencia

Elige la Fibra que mejor se adapte a ti.

Please let us know about it so we can correct it.