Contrata luz y gas online, sin permanencia
- 2016 sqm
Industrial buildings for rent in La Bonanova
Palma de Mallorca
Ref. 100BG141
NAVE INDUSTRIAL EN ALQUILER EN SON CASTELLÓ
2 PLANTAS · IMAGEN CORPORATIVA · OPCIÓN DE COMPRA
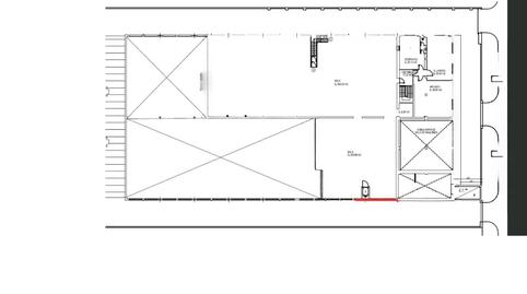
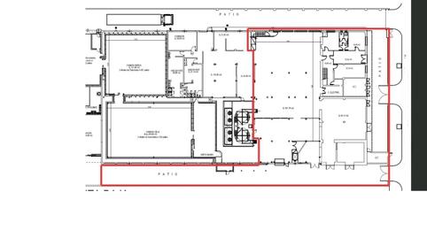
Se alquila parte de nave industrial (zona delimitada en plano en color rojo) ubicada en el Polígono de Son Castelló, la principal zona empresarial de Palma.
👉 Se alquila la parte de planta baja delimitada en rojo + toda la planta superior de oficinas.
👉 La otra parte de la nave se encuentra actualmente alquilada.
💡 Oportunidad adicional: posibilidad de adquirir la totalidad de la nave completa por 6.200.000 €.
Una opción ideal tanto para empresas operativas como para inversores que buscan activo en rentabilidad.
📐 SUPERFICIE Y DISTRIBUCIÓN
🔹 1.575 m2 construidos distribuidos en:
✔ 2 plantas
✔ 35 metros lineales de fachada (alta visibilidad corporativa)
🔸 Almacenes: 1.160 m2
🔸 Oficinas (planta superior): 415 m2
🔸 Muelle de carga: 313 m2
🔸 Patio en fachada: 128,2 m2
👉 Superficie total operativa: 2.016 m2
🏗️ DISTRIBUCIÓN FUNCIONAL
✔ Planta baja destinada a almacenaje / logística / producción
✔ Planta superior con oficinas amplias, representativas y funcionales
✔ Espacios diáfanos con gran versatilidad de uso
🔧 ACCESOS Y OPERATIVA
✔ Montacargas
✔ Escalera interior
✔ Escalera de emergencia independiente
✔ Zona de carga y descarga optimizada
❄️ CALIDADES
✔ Nave totalmente reformada
✔ Lista para iniciar actividad inmediata
✔ Climatización en oficinas
✔ Instalaciones adaptadas a uso profesional
📍 UBICACIÓN ESTRATÉGICA
Situada en Son Castelló, el polígono más importante de Palma:
✔ Excelente conexión con autopistas
✔ Zona empresarial consolidada
✔ Alta visibilidad y accesibilidad
✔ Ubicación ideal para logística, distribución o sede corporativa
💰 CONDICIONES
💶 Alquiler: 15.000 € / mes
📌 Se alquila únicamente la zona delimitada en plano (planta baja + planta superior)
💼 Opción inversión:
💰 Compra de la nave completa: 6.200.000 €
⚠️ INFORMACIÓN ADICIONAL
📌 Los planos facilitados corresponden a la realidad del inmueble.
📌 Las imágenes son meramente indicativas y pueden no reflejar fielmente el estado actual o la configuración exacta del espacio.
🎯 IDEAL PARA
✔ Empresas industriales
✔ Logística y distribución
✔ Showroom + oficinas corporativas
✔ Empresas tecnológicas o de producción
✔ Inversores patrimonialistas
More filters
Property type
Industrial unitCondition
Very goodAge
50 to 70 yearsLift
No
Elige la Fibra que mejor se adapte a ti.